Продажа здания на улице Орджоникидзе, 7 715,9 м2
Цена:
1 700 000 000 ₽
Цена м2:
220 324 ₽
г Москва, ул Орджоникидзе, д 11 стр 11
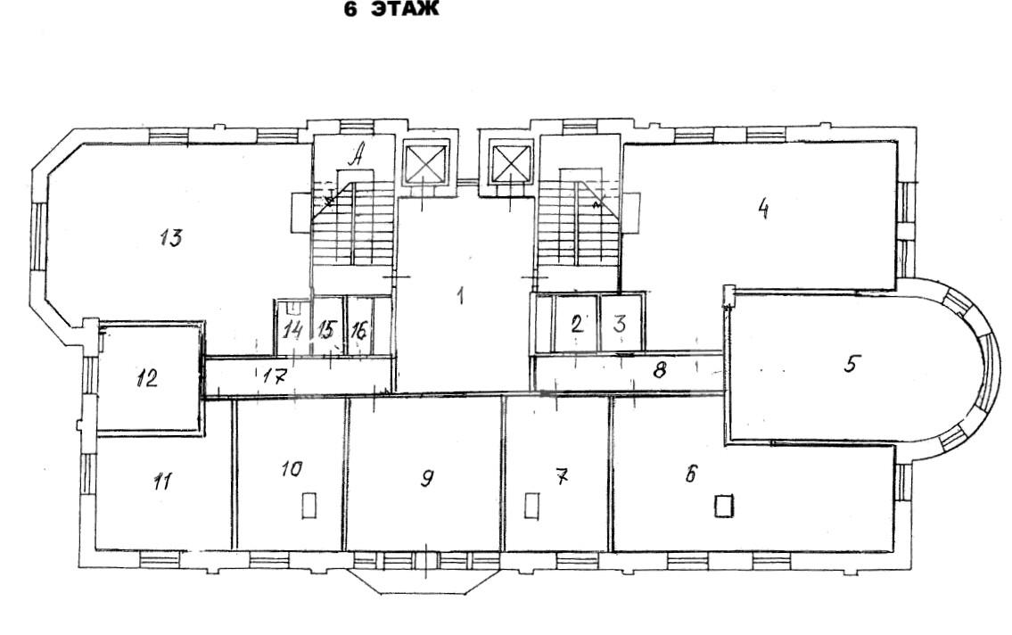
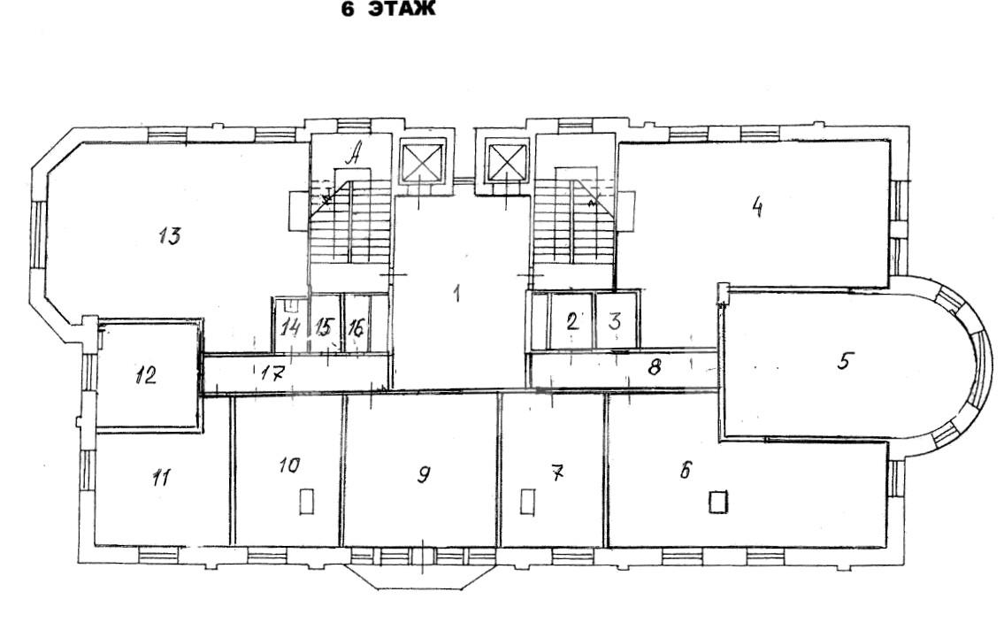
Отдельно стоящее здание в районе Басманный. Центр жилого массива. 10 минут пешком от ст. метро «Бауманская». 6 этажей + мансарда. Здание введено в эксплуатацию в 1997 г. 3 входа. Кабинетная планировка. Офисная отделка. Есть возможность перепланировки (включая Open Spaсe). Два лифта Schindler (Швейцария). Все коммуникации центральные. Прилегающий земельный участок 1409 кв. м в аренде до 2058 года. Подземный паркинг на 18 м/м. Наземный паркинг на 15 м/м.
Технические характеристики
Электрическая мощность: 370кВт.
Высота потолков: от 2.8 до 3.2 м.

