Продажа здания на улице Большая Грузинская, 902 м2
Цена:
560 000 000 ₽
Цена м2:
620 842 ₽
г Москва, ул Большая Грузинская, д 36А стр 4
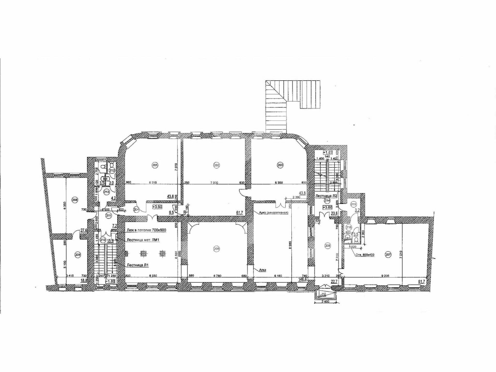
Отдельно стоящее здание с арендаторами в Таганском районе. Усадьба Лепехиных. Первая линия Андроньевской пл. 6 минут пешком от ст. метро «Римская». Интенсивный автомобильный и пешеходный трафик. Сложившееся деловое окружение. 1, 2 этаж. 1773 год строительства. Полная реконструкция здания в 2012 году. 4 отдельных входа. Смешанная планировка. В помещениях выполнен ремонт с сохранением исторического облика, паркет на полу, лепнина, колонны. Земельный участок 0,22 Га оформлен в аренду. Огороженная территория, парковка на 20 машин. Напротив остановка общественного транспорта.
Технические характеристики
Электрическая мощность: 150 кВт
Высота потолков: от 3.5 до 4 м.

