Продажа готового бизнеса в ЖК Клубный город на реке Primavera, 56,1 м2
Цена:
60 000 000 ₽
Цена м2:
1 069 518 ₽
г Москва, Покровская наб, д 16
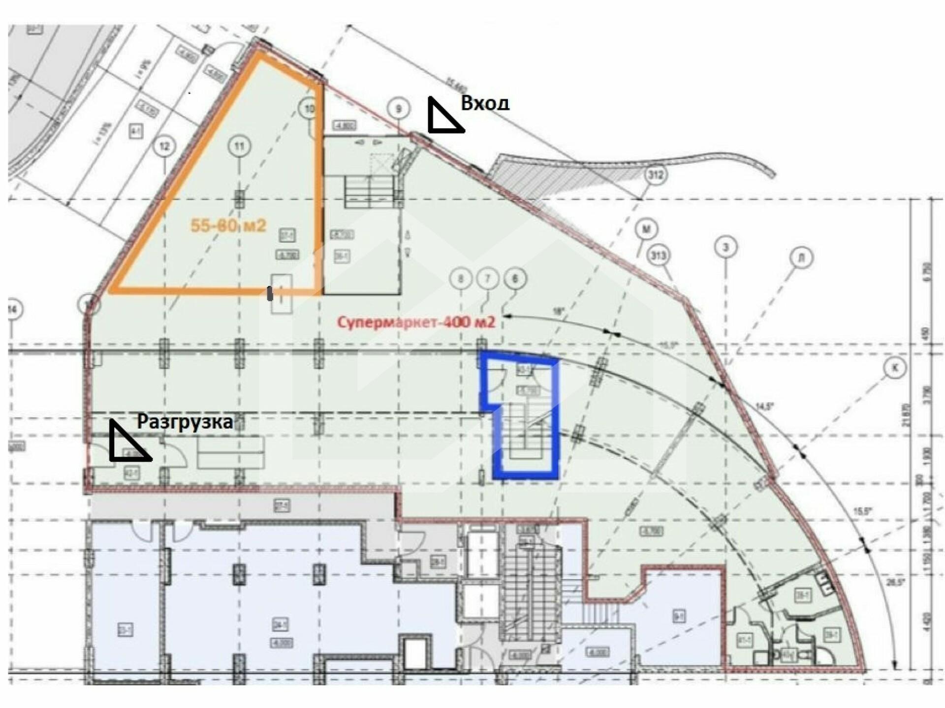
Торговое помещение формата Street Retail с арендаторами в ЖК «Лефорт» в юго-восточном районе Москвы. Центр нового жилого микрорайона. 4 минуты пешком от ст. метро «Лефортово». Стабильный пешеходный трафик. Отсутствие конкурентов. 1 этаж 17-ти этажного жилого дома бизнес-класса. 2 отдельных входа. Зона погрузки расположена при въезде в паркинг. Зальная планировка. Возможность размещения вывески. Парковка напротив фасада. Витринное остекление, зона разгрузки/погрузки.
Технические характеристики:
Электрическая мощность: 87 кВт
Высота потолков: от 4.25 м
Арендаторы:
Аптека "Доктор Столетов", ДДА. МАП 120 000 руб/мес. Индексация 5%
Дикси, ДДА. МАП 772 500 руб/мес С безусловной индексацией 3% и выходом на фиксированный МАП 950 078 руб/мес. 5.8 % от товарооборота

