Аренда здания у метро Курская, 832 м2
Аренда в месяц:
3 350 000 ₽
Цена м²/год:
48 312 ₽
г Москва, Большой Казённый пер, д 8 стр 1
Предлагаем в аренду офисное строение площадью 2594 кв. м, расположенное в бизнес-квартале «Фактория»
Преимущества объекта:
- Здание класса В
- Шаговая доступность от станции метро Савёловская (5 минут пешком)
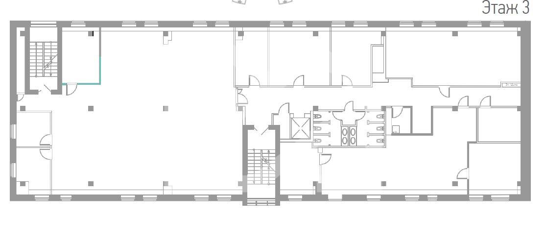
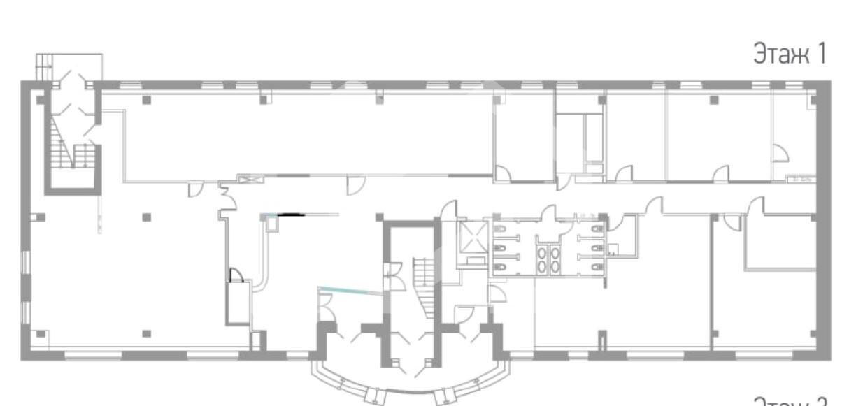
- Этаж: 1-4
- Помещение предлагается с отделкой
- Планировка смешанная
- Помещение готово к въезду
- Предусмотрена подземная и наземная парковки, предусмотрено 1 м/м на 50 кв.м. арендуемой площади
