Продажа торговой площади в ЖК «Russian Design District» (Рашен Дизайн Дистрикт), 96,8 м2
Цена:
35 421 540 ₽
Цена м²:
365 925 ₽
г Москва, поселение Десеновское, ул 1-я Ватутинская, д 12 к 2
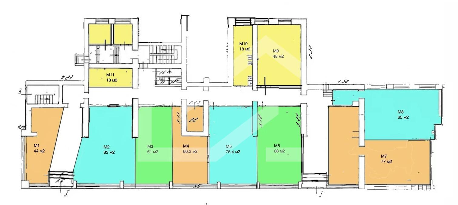
Помещение свободного назначения во встроенно-пристроенной части на первой линии проспекта Мира. 15 минут пешком от станции метро "ВДНХ". 2.8 км до Ярославского шоссе, 3.4 км до СВХ, 5.3 км до ТТК, 6.5 км до Алтуфьевского шоссе. Плотный жилой массив. Сложившееся торговое окружение. Интенсивный автомобильный и пешеходный трафик. Подвал, 1 этаж 9-этажного жилого дома. 4 входа: 2 входа для посетителей, служебный и черный вход. Смешанная планировка. Типовой ремонт. Электрическая мощность: 65 кВт. Высота потолков: от 2.5 м до 4 м. Витринное остекление. Возможность размещения вывески. Наземная парковка. Рядом остановка общественного транспорта.
Общая площадь - 1149 кв. м.
Подвал 349 кв. м.
1 этаж - 800 кв. м.
