Продажа офиса у метро Калужская, 2 548,6 м2
Цена:
815 000 000 ₽
Цена м²:
319 783 ₽
г Москва, ул Бутлерова, д 17
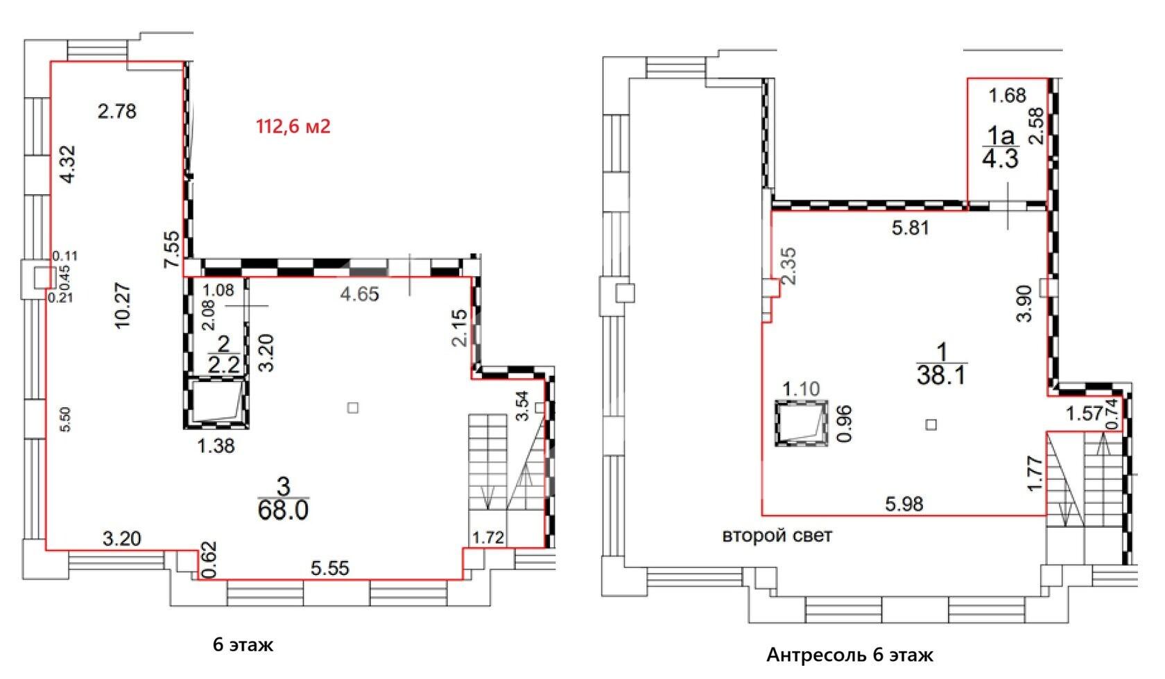
Помещение в бизнес-центре "Лофт 46", расположенном в пешей доступности до метро "Бауманская". Вблизи проходят сразу несколько крупных автодорог, таких как Третье Транспортное Кольцо, Русаковская улица, улица Стромынка. Помещение площадью 872 кв. м, расположено на 4-6 этажах. С отделкой в стиле "Лофт". Планировка смешанная Высота потолка 3-6 м. Наземная парковка.
