Аренда офиса на улице МКАД 64-й, 1 700 м2
Аренда в месяц:
59 500 000 ₽
Цена м²/год:
420 000 ₽
г Москва, МКАД 64-й км, стр 1
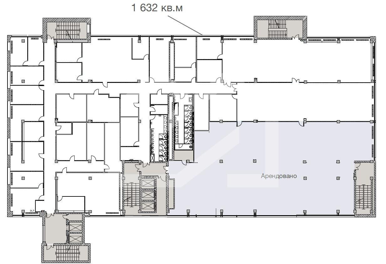
Офисное помещение 1 632 кв.м в бизнес-центре класса В+ «Квадрат». 12 минут пешком от станции метро Давыдково. Можайское шоссе в 1,7 км, МКАД в 4,2 км, от ТТК 8 км. Часть 4 этажа. Смешанная планировка. Офисная отделка. Наземная парковка. Шаттл-бас от метро Кунцевская и Славянский бульвар. Высота потолков: 3 м.
