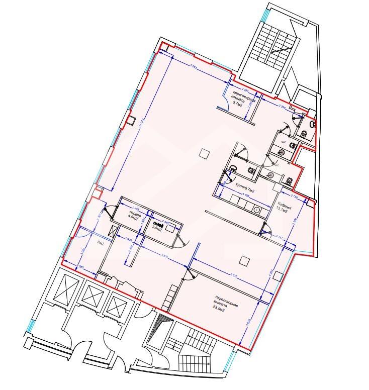
Аренда офиса у метро Улица 1905 года, 241 м2
Аренда в месяц:
1 205 000 ₽
Цена м²/год:
60 000 ₽
г Москва, 1-й Земельный пер, д 1
Офисное помещение в бизнес-центре "Мосэнка Парк Тауэрс 4" класса А. ЦАО Москвы, престижный Таганский район. Удобная транспортная доступность, комфортный выезд на Садовое кольцо. 9 минут пешком до метро "Таганская" и 7 минут до метро "Марксистская". Офис 298 кв. м. на 3 этаже. Смешанная планировка. Панорамное остекление. Архитектура башни в стиле хай-тек. Презентабельная входная группа. Помещения общего пользования отделаны гранитом, мрамором и древесиной. Приточно-вытяжная вентиляция. Собственная котельная. Центральное кондиционирование. Пожарная сигнализация. 8 Лифтов. Круглосуточная охрана и видеонаблюдение. Пропускная система. Подземный и наземный паркинг. В шаговой доступности расположены: торговый центр «Таганский пассаж», фитнес-центр.
