ID: 1154389
Ссылка скопирована!
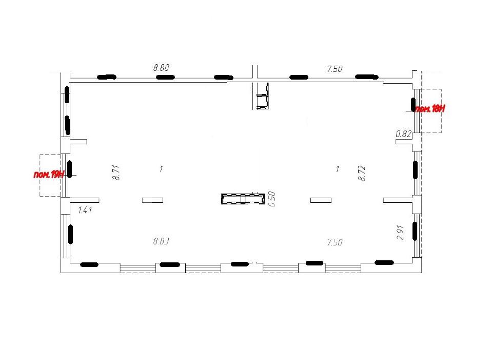
Аренда помещения свободного назначения в ЖК «Новые Ватутинки», 138,1 м2
ID: 1154389
г Москва, р-н Троицк, ул 3-я Нововатутинская, д 15 к 3
Прокшино
0 мин.
Арендная плата (УСН):345 250 ₽/ в мес
Ссылка скопирована!
Арендная ставка:2 500 ₽/м² в мес
Площадь: 138,1 м²
г Москва, р-н Троицк, ул 3-я Нововатутинская, д 15 к 3
Прокшино
0 мин.
Описание
Характеристики объекта
Характеристики ЖК
Описание
Предлагается в аренду от Собственника помещение свободного назначения площадью 138.1 м2
Выполнен качественный ремонт.
Месторасположение на первой линии жилого квартала в районе Новые Ватутинки Центральный.
Угловое помещение на первом этаже жилого дома
Витринные окна
Зальная планировка
Отдельный вход
Высота потолков 4м
Электрическая мощность 30 кВт
Место для вывески
Рядом стоянка и остановка общественного транспорта.
Арендная ставка: 3000 руб за м2 в месяц
Расположение
г Москва, р-н Троицк, ул 3-я Нововатутинская, д 15 к 3
Прокшино
20 мин.
Похожие объекты
























