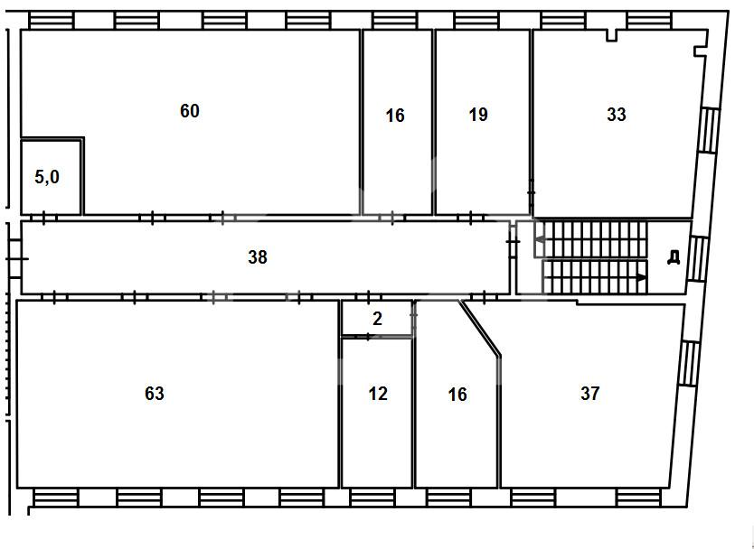
Аренда офиса у метро Комсомольская, 237 м2
Аренда в месяц:
671 500 ₽
Цена м²/год:
33 996 ₽
г Москва, ул Новая Басманная, д 9 стр 6
Помещение офисного формата в бизнес центре на Варшавском шоссе.
Сложившееся деловое окружение, развитая инфраструктура. Ближайшая
станция метро – Тульская (меньше 15 минут пешком). Пятый этаж. Смешанная
планировка. Электрическая мощность: по потребности (раньше было производство). Высота потолков: 3 м. Парковочное место на территории включено в ставку, на прилегающей территории бесплатная стихийная парковка бизнес центра.
