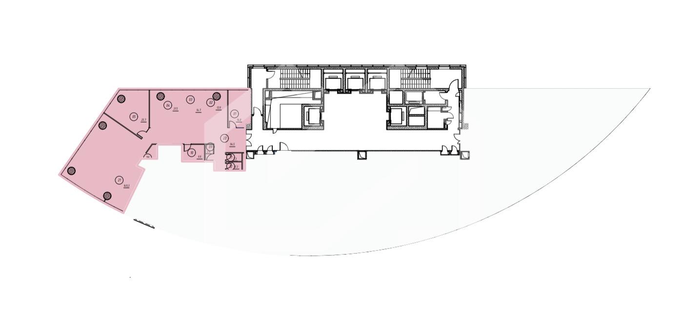
Аренда офиса на улице Нахимовский проспект, 2 084 м2
Аренда в месяц:
6 356 200 ₽
Цена м2/год:
36 600 ₽
г Москва, Нахимовский пр-кт, д 58
Офисное помещение в бизнес-центре класса А "Башня на Набережной" в Пресненском районе (Блок А). Ближайшие станции метро — Международная и Выставочная находятся под ТРЦ Афимолл (4 мин. пешком). В здании действует торговая галерея с ресторанами. Работают отделения банков, салоны красоты, ателье, аптека, магазины одежды. Блок включает 27 этажей общей площадью 57 681 кв.м. Нижние этажи здания занимают торговая галерея и предприятия сферы услуг. Помещение площадью 275 кв.м на 8 этаже. Смешанная планировка, с отделкой. Приточно-вытяжная вентиляция, центральное кондиционирование. За отдельную плату можно арендовать место на подземной парковке (4 уровня на 600 автомобилей). Наземная парковка для гостей и работников БЦ рассчитана на 250 машиномест.
