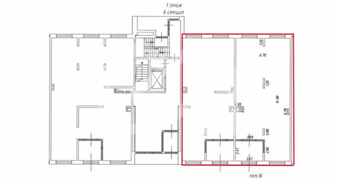
Аренда торговой площади в ЖК Прокшино, 91,7 м2
Аренда в месяц:
300 000 ₽
Цена м2/год:
39 252 ₽
г Москва, р-н Коммунарка, Прокшинский пр-кт, д 7
Помещение свободного назначения формата Street Retail в ЖК «Влюблино».
ЖК состоит из 4 корпусов переменной этажности (от 5 до 17 этажей). 12 минут пешком от станции метро Люблино. Плотный жилой массив. Рядом детский сад, школа танцев. Интенсивный автомобильный и пешеходный трафик. Две входные группы с улицы.
Зальная планировка. Качественный евроремонт. Витринное остекление. Парковка на улице. Других свободных объектов коммерческой недвижимости в данном районе нет. Идеально для шоурума, оригинального офиса.
Технические характеристики
Первый этаж
Площадь 195.8
Электрическая мощность 38 кВт
Высота потолков 3 метра
