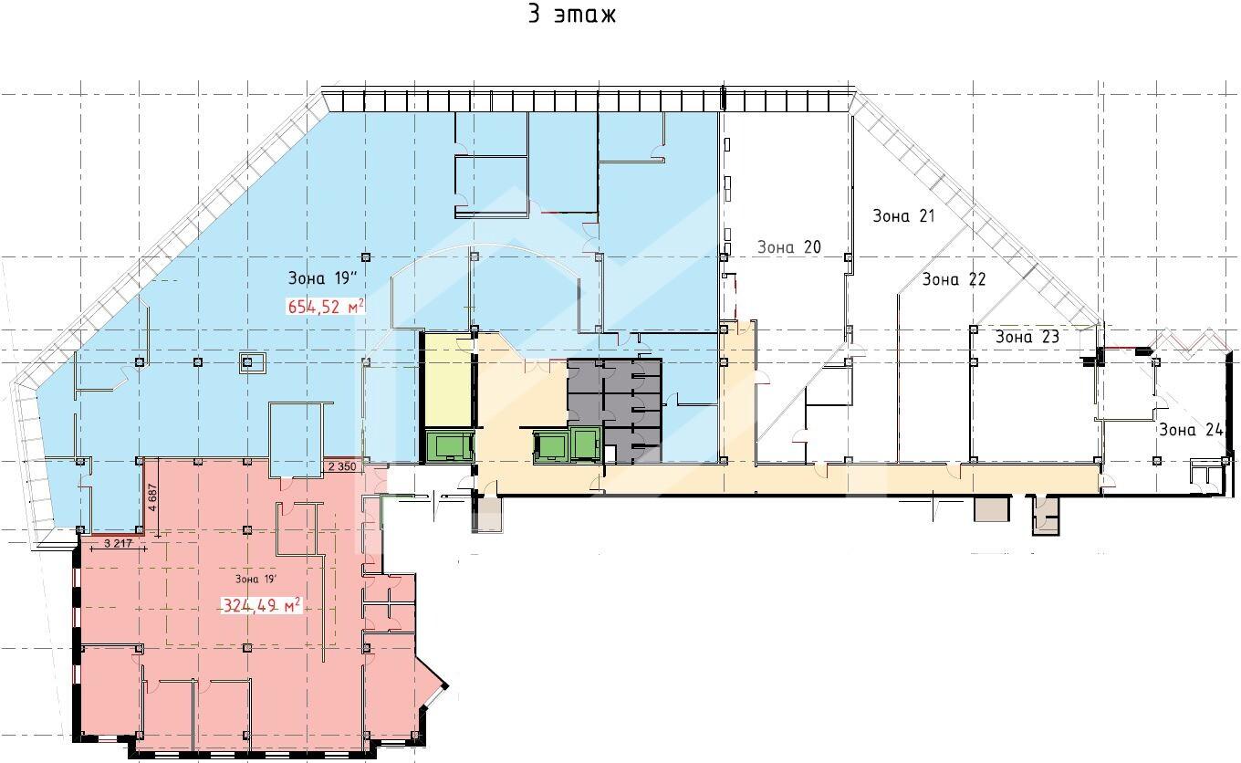
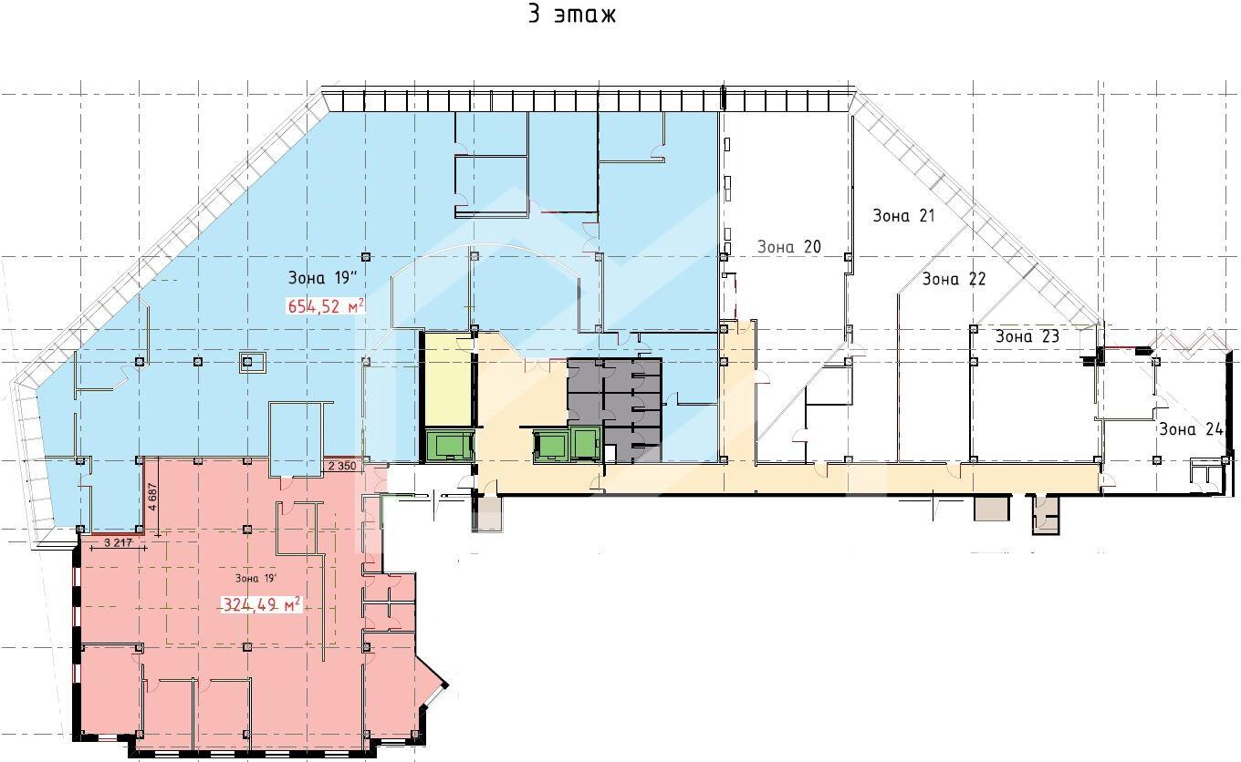
Аренда офиса на улице Нахимовский проспект, 2 084 м2
Аренда в месяц:
6 356 200 ₽
Цена м2/год:
36 600 ₽
г Москва, Нахимовский пр-кт, д 58
Бизнес-центр Олимпик Плаза. Шаговая доступность до метро проспект Мира. В аренду предлагается офис на 3 этаже, 356,95 кв.м. Помещение с отделкой, планировка смешанная. Наземная и подземная парковка.
