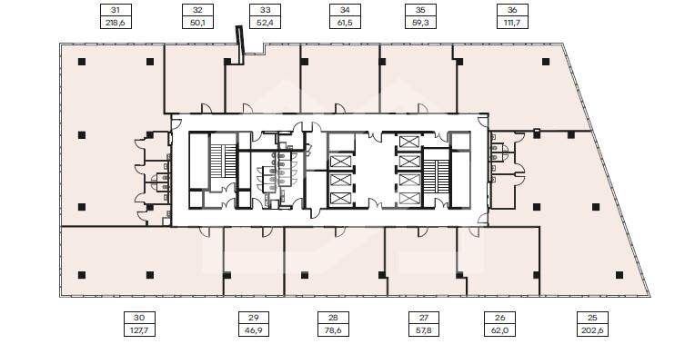
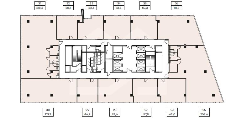
Продажа офиса на улице 2-й Силикатный, 99,9 м2
Цена:
46 953 000 ₽
Цена м²:
470 000 ₽
г Москва, 2-й Силикатный пр-д, д 8
Офисное помещение в бизнес-центре класса А "LEVEL Work Воронцовская". Развитая транспортная инфраструктура: выезд на Старокалужское шоссе в 200 м. Пешая доступность до станции метро Воронцовская (1 минуты) и Калужская (5 минут). На первом этаже Бизнес центра размещаются ресторан, супермаркет, медицинский и спортивный центры. В здании центральное приточно-вытяжное кондиционирование, 6 высокоскоростных лифтов, Wi-Fi и усиление сигнала сотовой связи. 8 этаж 23-этажного здания, с отделкой. Общий вход. Открытая планировка. Панорамное остекление. Подземный паркинг с зарядкой для электромобилей и распознаванием номеров автомобилей на 179 м/м.
