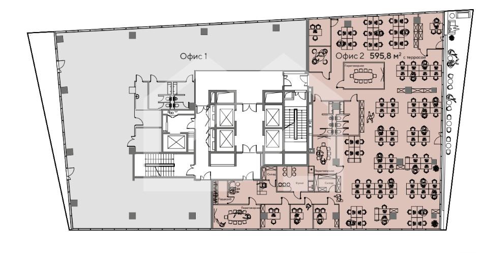
Аренда офиса на улице Большой Саввинский, 571,5 м2
Аренда в месяц:
1 833 563 ₽
Цена м²/год:
38 496 ₽
г Москва, Большой Саввинский пер, д 9 стр 2
Офисное помещение в бизнес-центре класса А "GEOLOG". 8 минут пешком от станции метро Калужская. Выезд на МКАД в 5 км. Сложившееся деловое окружение. На первом этаже БЦ магазины, кафе и рестораны. 10 этаж 13-этажного здания. Общий вход. Открытая планировка. Витражное остекление. В здании центральная приточно-вытяжная система NED, централизованное кондиционирование системы "Чиллер-фанкоил" NED. Двухуровневый подземный паркинг на 88 машиномест. Высота потолков: 3.5 м.
