Аренда помещения свободного назначения в г. Котельники, 86,7 м2
Кадастровый номер: 50:22:0000000:124758
Описание
Характеристики объекта
Описание
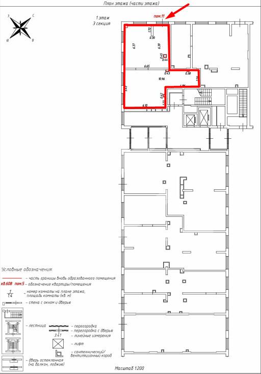
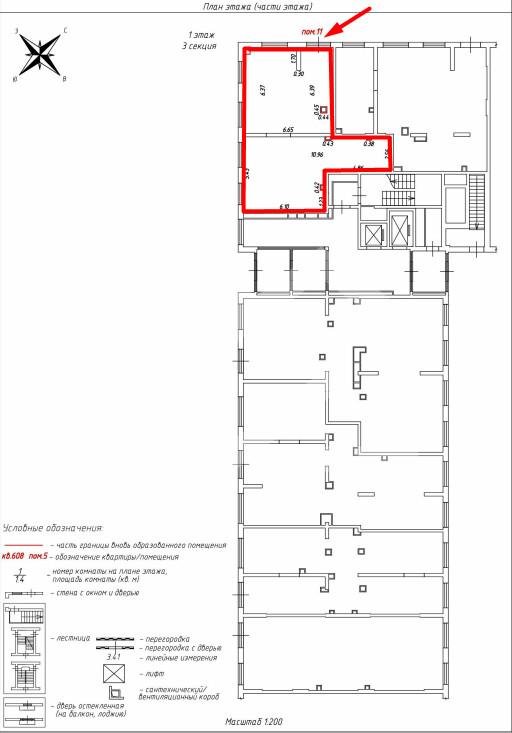
Помещение свободного назначения формата торговое помещение в ЖК "Белая Дача парк" на первой линии ул. Железнодорожная. Угловое помещение. ЖК состоит из 17-ти 25-этажных корпусов, рассчитанных на 9 119 квартир. 9 минут на автомобиле от станции метро "Котельники". 750 м до Новоегорьевского шоссе, 2.4 км до МКАД, 2.8 км от Новорязанского шоссе, 3.2 км от МКАД, 4 км до Дзержинского шоссе, 6.5 км до Егорьевского шоссе. Плотный жилой массив. Сложившееся торговое окружение. Вблизи жилого комплекса торговый комплекс "Outlet Village Белая Дача". Интенсивный автомобильный и пешеходный трафик. 1 этаж 25-этажного жилого дома. Отдельный вход с улицы. Открытая планировка. Высота потолков: 4.6 м. Электрическая мощность: 17 кВт. Витринное остекление. Возможность размещения вывески. Наземная парковка. Рядом остановка общественного транспорта.
Расположение
Похожие объекты










