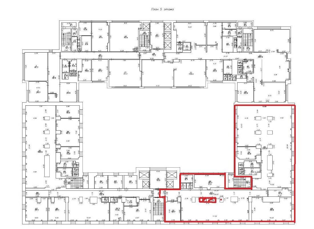
Аренда офиса на улице 60-летия Октября проспект, 1 926,3 м2
Аренда в месяц:
7 637 780 ₽
Цена м2/год:
47 580 ₽
г Москва, пр-кт 60-летия Октября, д 10А
Офисное помещение в бизнес-центре класса В+ "Радеж". 260 метров от станции метро Профсоюзная. От ТТК - 3,49 км, от Садового кольца - 6,33 км. Сложившееся деловое окружение. На первых этажах здания расположены: ресторан корпоративного питания, мини-маркет, нотариальная контора. 614,15 кв.м. 5 этаж 8-этажного БЦ. Смешанная планировка. Качественная отделка мест общего пользования. Центральное кондиционирование. Приточно-вытяжная вентиляция. Спринклерная система пожаротушения. Служба ресепшен на главном входе в БЦ. Подземный паркинг на 110 машиномест.
