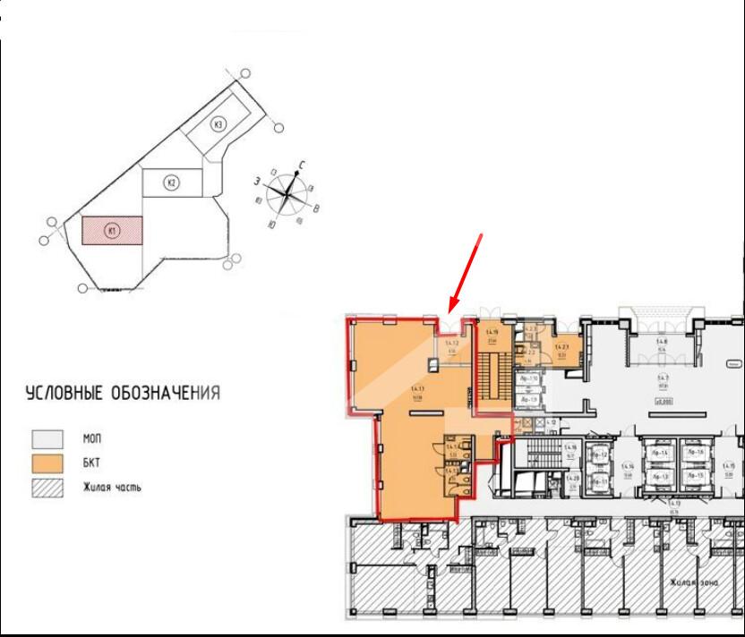
Аренда торговой площади в ЖК Прокшино, 91,7 м2
Аренда в месяц:
300 000 ₽
Цена м²/год:
39 252 ₽
г Москва, р-н Коммунарка, Прокшинский пр-кт, д 7
Помещение свободного назначения формата торговое помещение в ЖК "Will Towers" на первой линии проспекта Генерала Дорохова. Район Раменки, ЗАО. ЖК состоит из 3 башен, этажностью от 52 до 56 этажей, рассчитанных на 1 906 квартир. 6 минут на автомобиле от станции метро "Аминьевская". 1.3 км до ул. Мосфильмовская, 2.8 км до Староможайского шоссе, 3 км до Аминьевского шоссе, 3.5 км Кутузовского проспекта, 5 км до Рублёвского шоссе, 5.3 км до Можайского шоссе, 6.5 км до МКАД. Плотный жилой массив. Мало коммерческих помещений, что гарантирует высокий спрос. Интенсивный автомобильный и пешеходный трафик. 1 этаж 56-этажного жилого дома. Отдельный вход с улицы. Открытая планировка. Высота потолков: 6 м. Витринное остекление. Возможность размещения вывески. Наземная парковка. Рядом остановка общественного транспорта.
