Аренда офиса на улице Нахимовский проспект, 2 084 м2
Аренда в месяц:
6 356 200 ₽
Цена м2/год:
36 600 ₽
г Москва, Нахимовский пр-кт, д 58
Офис в Бизнес-квартале "Прокшино", класса А. Расположен в 1 минуте от метро Прокшино. Многофункциональный деловой квартал в состав которого входят 5 офисных зданий класса А, торговый центр, ресторан с открытой террасой, современный фитнес-центр.
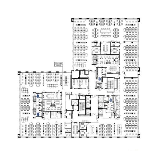
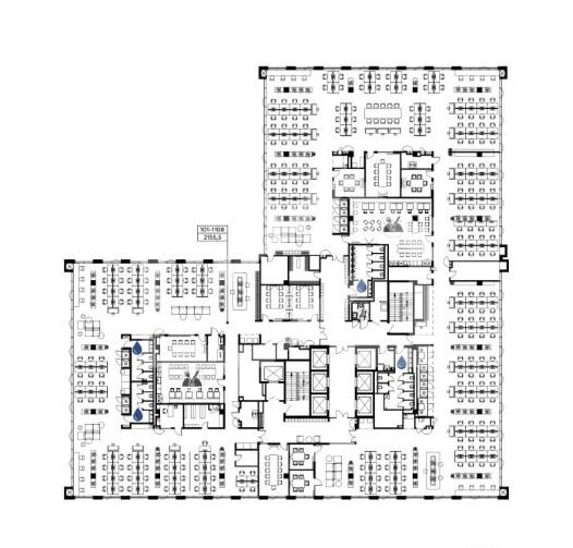
Офисное помещение площадью 2155.5 кв. м. на 11 этаже. Свежий современный ремонт, офис сдается с мебелью. Высота потолков 3.38 м. Панорамные окна с функцией проветривания, кондиционирование, приточно-вытяжная вентиляция с высокой степенью очистки воздуха, теплый подземный паркинг, гостевой наземный паркинг с сервисными зонами, собственная инфраструктура.
