ID: 1101394
Ссылка скопирована!
Аренда помещения свободного назначения у метро Авиамоторная, 40,5 м2
ID: 1101394
г Москва, ул Крузенштерна, д 10 к 1
Авиамоторная
10 мин.
Арендная плата (УСН):210 000 ₽/ в мес
Ссылка скопирована!
Арендная ставка:5 185 ₽/м² в мес
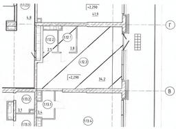
Площадь: 40,5 м²
г Москва, ул Крузенштерна, д 10 к 1
Авиамоторная
10 мин.
Описание
Характеристики объекта
Описание
Помещение свободного назначения формата торговое помещение в жилом комплексе бизнес-класса "Символ". Улица Крузенштерна. ЖК состоит из 6 кварталов, дома переменной этажности (от 3 до 28 этажей). В пешей доступности от станции метро Авиамоторная, Площадь Ильича, Римская, вблизи Третье транспортное кольцо. Плотный жилой массив. Интенсивный автомобильный и пешеходный трафик. 1 этаж 27-этажного жилого дома. Отдельная входная группа с улицы. Витринное остекление. Место для вывески. Все коммуникации (электричество, водоснабжение, канализация). Вытяжка общедомовая. Парковка на территории. Электрическая мощность: 15 кВт. Высота потолков: 3,9 м.
Расположение
г Москва, ул Крузенштерна, д 10 к 1
Римская
5 мин.
Похожие объекты










































