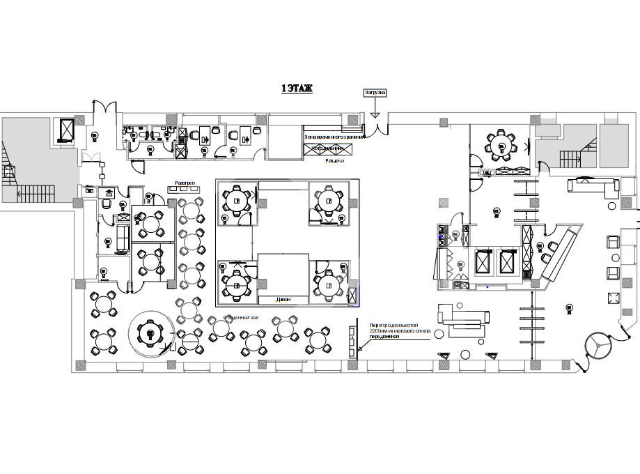
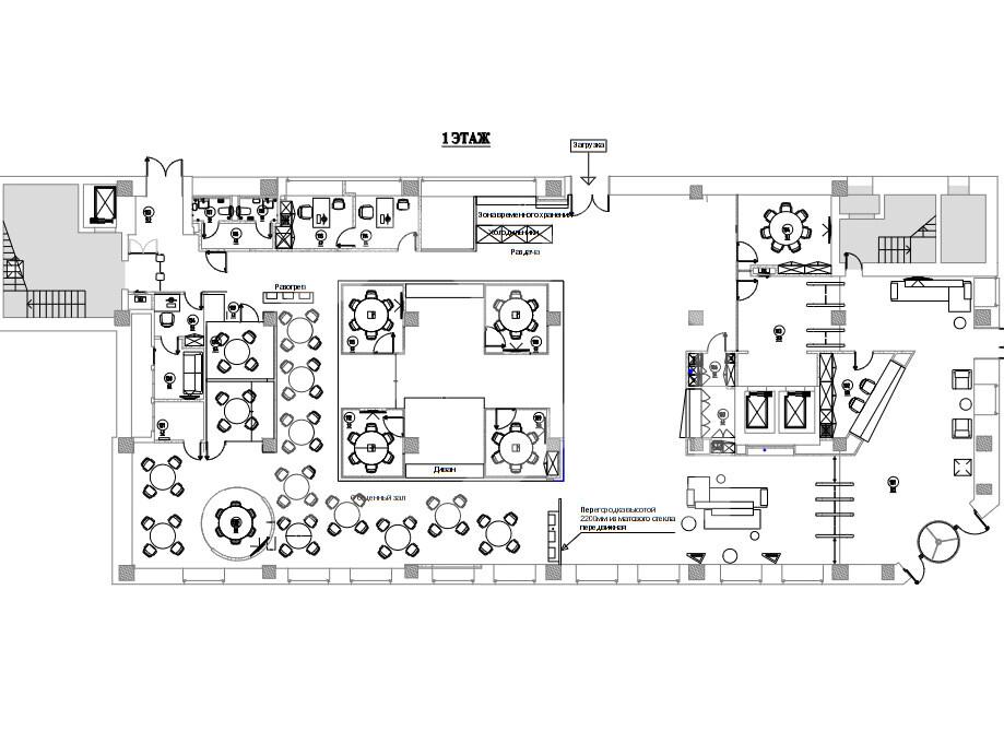
Аренда офиса на улице Нахимовский проспект, 2 084 м2
Аренда в месяц:
6 356 200 ₽
Цена м2/год:
36 600 ₽
г Москва, Нахимовский пр-кт, д 58
Офисное помещение в бизнес-центре класса А «Эрмитаж Плаза». 11 минут пешком от станции метро Цветной бульвар. Рядом столовая, ресторан, кафе, бар. 1-6 этажи 8-этажного здания. Смешанная планировка: кабинеты, переговорные, зона open space, санузлы. Офисная отделка. Панорамное остекление. Приточно-вытяжная вентиляция. Центральное кондиционирование. Пропускная система. Круглосуточная охрана и видеонаблюдение. Спринклерная система пожаротушения и сигнализация. 12 лифтов марки Thyssen. Охраняемый подземный (на 283 машиноместа) и наземный паркинг. Электрическая мощность: 70 кВт.
