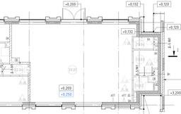
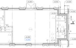
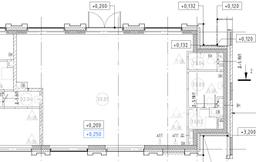
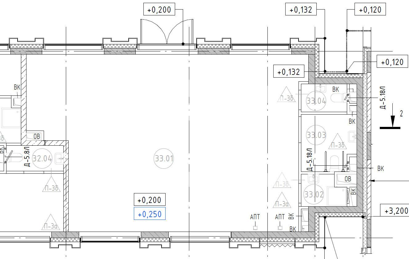
Аренда торговой площади в ЖК Ильинские луга, 66,2 м2
Аренда в месяц:
190 000 ₽
Цена м2/год:
34 440 ₽
Московская обл, г Красногорск, поселок Ильинское-Усово
Помещение свободного назначения формата Street Retail в ЖК "Wave", башня "INDIGO". Помещение № 15. ЖК состоит из 11 корпусов переменной этажности (от 9 до 52 этажей), рассчитанных на 2 802 квартиры. 17 минут пешком от станции МЦД-2 "Москворечье". 1.3 км до Каширского шоссе, 3.4 км до СВХ и Бесединского шоссе, 6.4 км до МКАД. Плотный жилой массив. Сложившееся торговое окружение. Интенсивный автомобильный и пешеходный трафик. 1 этаж 3-этажной башни. Отдельный вход с улицы. Смешанная планировка. Высота потолков: от 4 м до 8 м. Витринное остекление. Возможность размещения вывески. Наземная парковка. Рядом остановка общественного транспорта.
Ввод: II квартал 2026 года.
Выдача ключей: IV квартал 2026 года.
