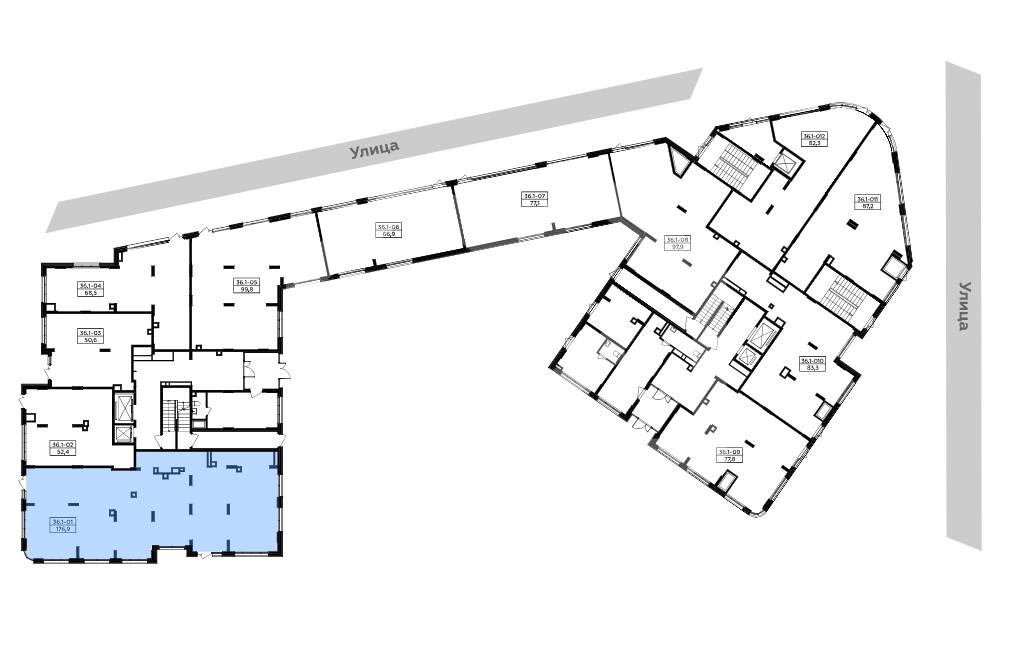
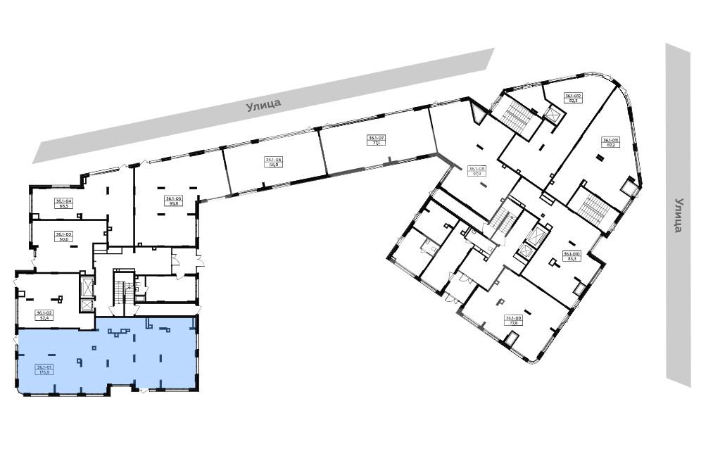
Продажа помещения свободного назначения в г. Химки, 562 м2
Цена:
134 880 000 ₽
Цена м²:
240 000 ₽
141435, Московская обл, г Химки, кв-л Международный, ул Береговая, д 10
Помещение свободного назначения формата торговое помещение в ЖК Скандинавия класса «комфорт». Корпус 36.1.1. Комплекс состоит из 30 корпусов, этажностью 7-19 этажей. Густонаселенный жилой район. Интенсивный автомобильный и пешеходный трафик. 12 минут пешком до станции метро "Потапово". 1 этаж 16-этажного жилого дома. Две отдельные входные группы. Открытая планировка. Эл. мощность: 35 кВт. Высота потолков: 4 м. Возможность размещения вывески. Кол-во входов: 2. Дом сдан
