Аренда офиса на улице Нахимовский проспект, 2 084 м2
Аренда в месяц:
6 356 200 ₽
Цена м2/год:
36 600 ₽
г Москва, Нахимовский пр-кт, д 58
Бизнес-центр «Орбита-2» расположен в Северо-Западном округе Москвы, в районе Строгино. Транспортная доступность: рядом находятся станции метро «Строгино» и «Щукинская», а также остановки общественного транспорта. Комплекс имеет развитую инфраструктуру: различные предприятия питания, нотариальную контору, страховое агентство, аптеку, парикмахерскую и салоны красоты.
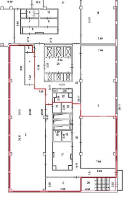
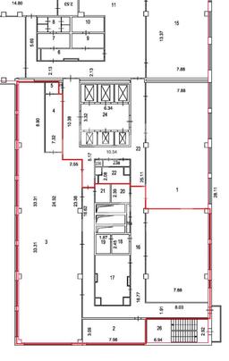
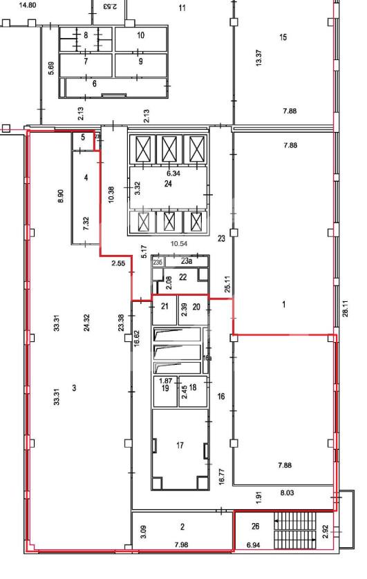
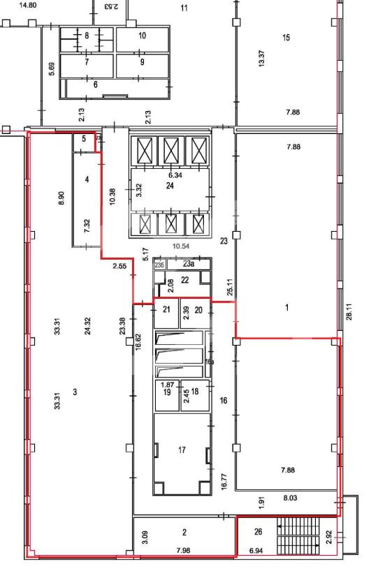
Офис расположен на 2 этаже. Общая площадь: 479.4 кв м. Высота потолков 2,7м. Смешенная планировка: Офисный блок с отдельным входом. Внутри блока есть возможность установить зона приема. Имеются кабинеты, кабинеты открытая зона, переговорные, комнаты под архивы, комната приёма пищи, санузлы, серверная, гардероб, кладовая.
