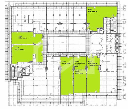
Продажа офиса на улице Бутлерова, 2 548,6 м2
Цена:
815 000 000 ₽
Цена м2:
319 783 ₽
г Москва, ул Бутлерова, д 17
Помещение в современном комплексе апартаментов "Резиденция Тверская". Развитая транспортная инфраструктура: выезд на Садовое кольцо в 500 м. Пешая доступность до станций метро Маяковская (6 минут) и Белорусская (9 минут).
Офис на 15 этажах. Общий вход с улицы. Смешанная планировка. Высокие потолки : 3 - 3,2 м. Витринное остекление. Рядом находится остановка общественного транспорта. Густонаселенный жилой район. Сложившееся торговое и деловое окружение. Интенсивный пешеходный и автомобильный трафик. В здании предусмотрена переговорная комната и лобби-бар, СПА-центр с массажным кабинетом, тренажерный зал. Семь лифтов марки Shindler, четыре из которых – панорамные, системы климат-контроля и фильтрации воды.
