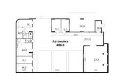
Продажа помещения свободного назначения на улице Ленинский проспект, 166,2 м2
Цена:
53 184 000 ₽
Цена м2:
320 000 ₽
г Москва, Ленинский пр-кт, д 67 к 1
Помещение формата Street Retail в ЖК «1-й Лермонтовский». Корпус 3.2. 5 минут на автомобиле от станций метро "Некрасовка", МЦД ст. Люберцы-1,2. Плотный жилой массив. Сложившееся торговое окружение. Активный пешеходный и автомобильный трафик. 1 этаж. Есть стихийная парковка вдоль улицы. Высота потолков: 4 м.

