ID: 1068783
Ссылка скопирована!
Аренда помещения свободного назначения у метро Мнёвники, 235 м2
ID: 1068783
г Москва, ул Нижние Мнёвники, д 9
Мнёвники
0 мин.
Арендная плата :1 250 000 ₽/ в мес
Ссылка скопирована!
Арендная ставка:5 319 ₽/м² в мес
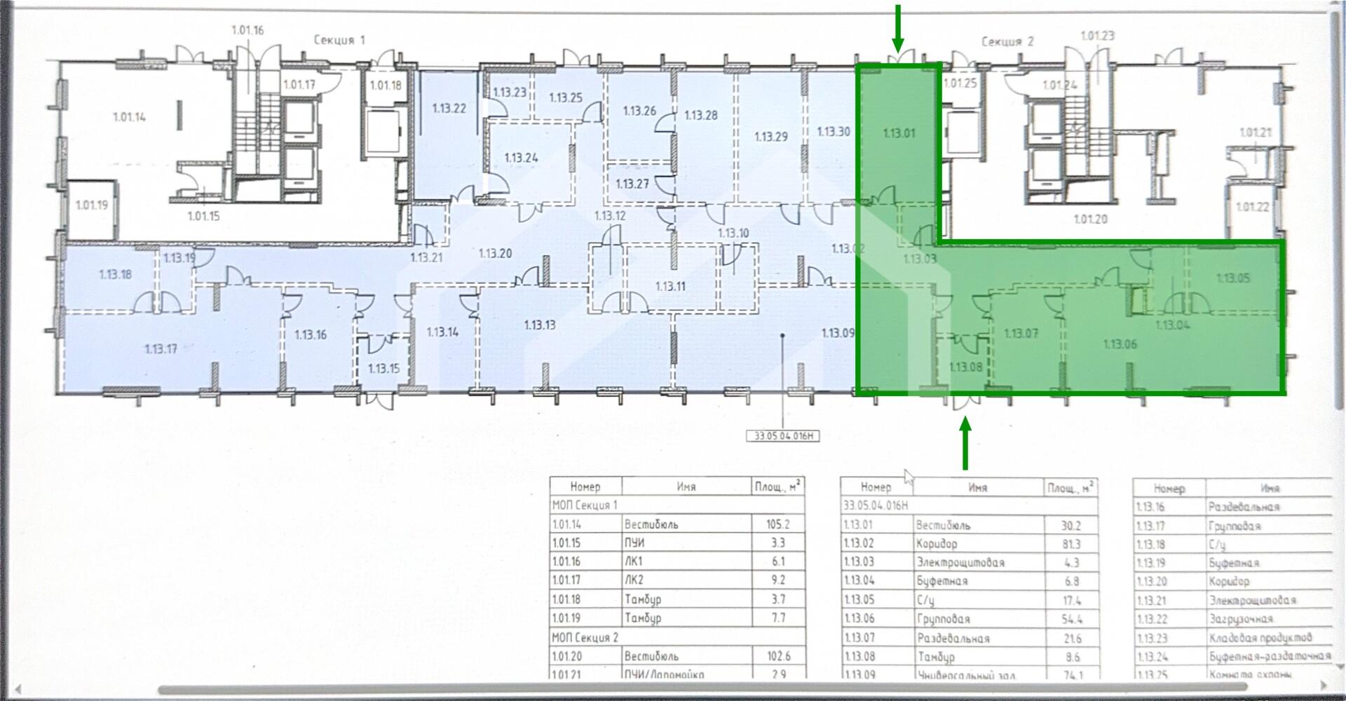
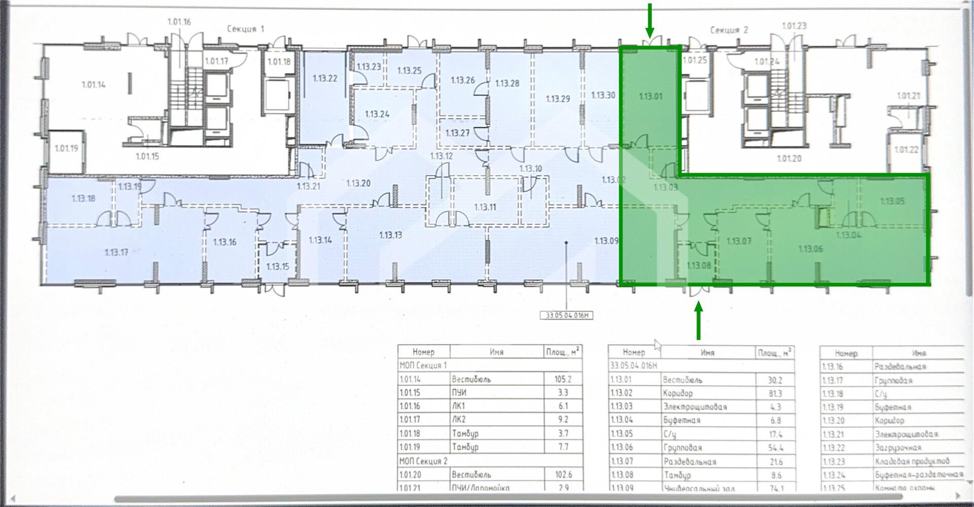
Площадь: 235 м²
г Москва, ул Нижние Мнёвники, д 9
Мнёвники
0 мин.
Описание
Характеристики объекта
Описание
Помещение свободного назначения формата торговое помещение в ЖК «Остров». Первая линия. ЖК состоит из 46 корпусов переменной этажности (от 5 до 23 этажей). 11 минут пешком от станции метро Терехово. Плотный жилой массив. Интенсивный автомобильный и пешеходный трафик. 1 этаж 22-этажного жилого дома. Отдельный вход с фасада. Зальная планировка. Витринное остекление. Место для вывески. Помещение соседнее с флагманским магазином Магнит. Парковка на улице. Рядом остановка общественного транспорта. Ввод в эксплуатацию: декабрь 2025 г. Высота потолков: 6 м.
Расположение
г Москва, ул Нижние Мнёвники, д 9
Терехово
4 мин.
Похожие объекты




















