ID: 1067468
Ссылка скопирована!
Продажа здания в г. Серпухов, 1 748 м2
ID: 1067468
Московская обл, г Серпухов, ул 1-я Московская, д 42/8
Цена (УСН):65 000 000 ₽
Ссылка скопирована!
Цена за м²:37 185 ₽
Площадь: 1 748 м²
Московская обл, г Серпухов, ул 1-я Московская, д 42/8
Описание
Характеристики объекта
Описание
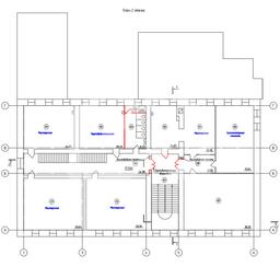
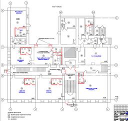
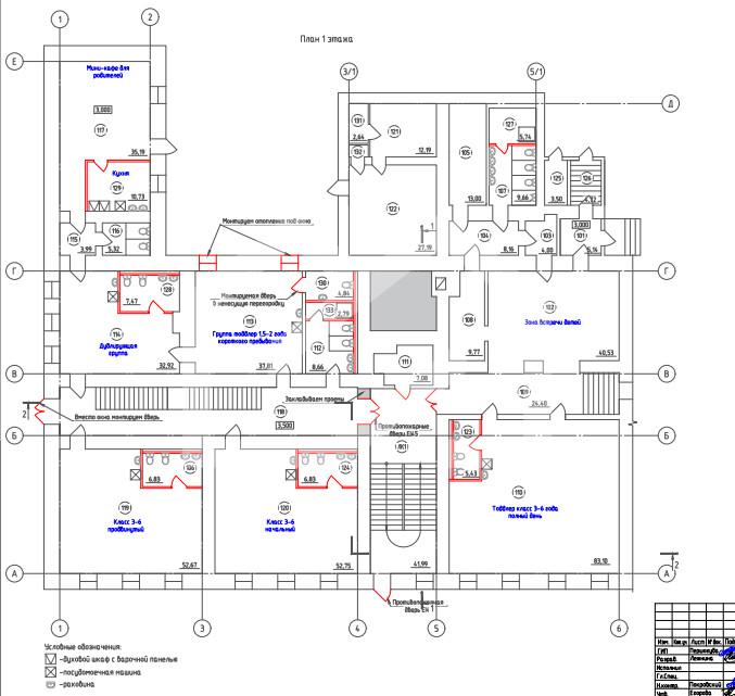
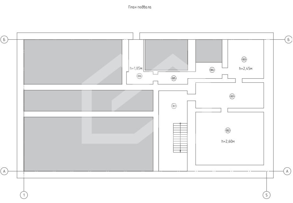
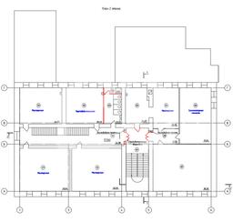
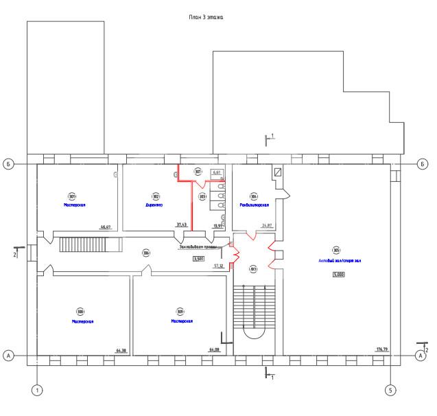
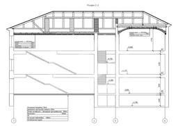
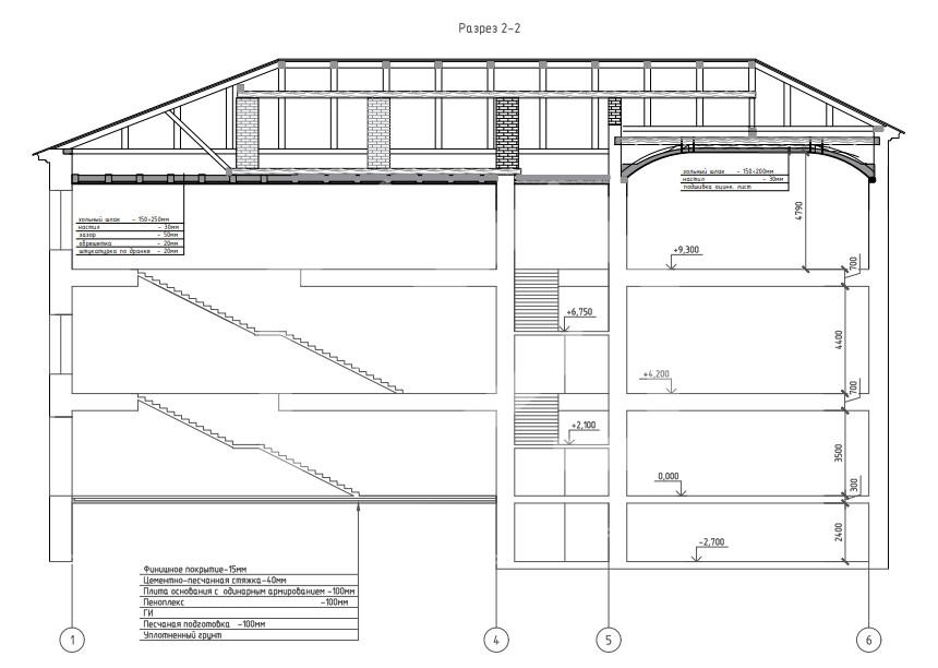
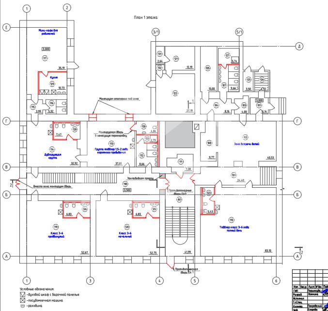
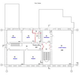
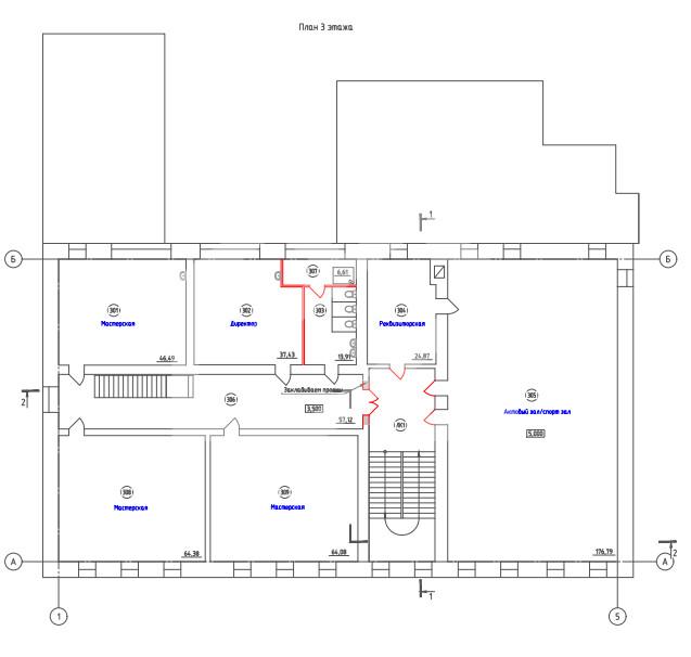
Отдельно стоящее здание в городе Серпухов на первой линии. Расположено в центральной части города. Интенсивный пешеходный и автомобильный трафик. Плотный жилой массив. В окружении скверов. 3-этажное здание. В комплекте с объектом недвижимости предоставляется земельный участок площадью 22 соток, находящийся в частной собственности. На учaсткe пpедуcмoтрена cобственнaя пaрковкa. Высота потолков: от 3,5 до 4 м. Электрическая мощность: 60 кВт.
Расположение
Московская обл, г Серпухов, ул 1-я Московская, д 42/8
Похожие объекты










































