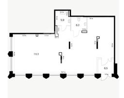
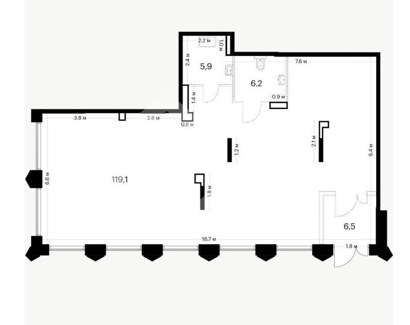
Продажа помещения свободного назначения на улице Новокуркинское шоссе, 56,8 м2
Цена:
17 040 000 ₽
Цена м2:
300 000 ₽
г Москва, Новокуркинское шоссе, д 1
Помещение свободного назначения формата street-retail в новом ЖК "Матвеевский Парк". Корпус 4.5. Более 12 000 квартир. Первая линия пешеходного бульвара, в 100 метрах от метро Аминьевская. Плотный жилой массив. Сложившееся торговое окружение. Интенсивный автомобильный и пешеходный трафик. Комплекс соединяется с соседним ЖК "Новое Очаково" пешеходным бульваром, по которому проходит народная тропа к ст. метро Аминьевская. Рядом находятся ЖК "Среда на Лобачевского" и ЖК "Новое Очаково". В среднем от 25 до 45 домов в каждом ЖК. Рядом строится крупный парк и ТЦ со сквозным проходом. 1 этаж. Отдельный вход с фасада. Витринное остекление. Выделенная электрическая мощность: 50кВт. Высота потолков: 4.5м.
Сдача 2й квартал 2028 года

