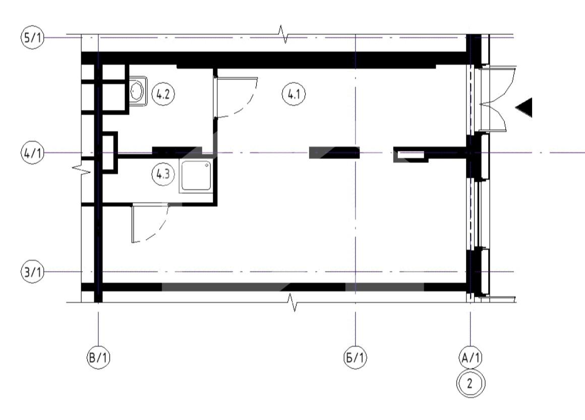
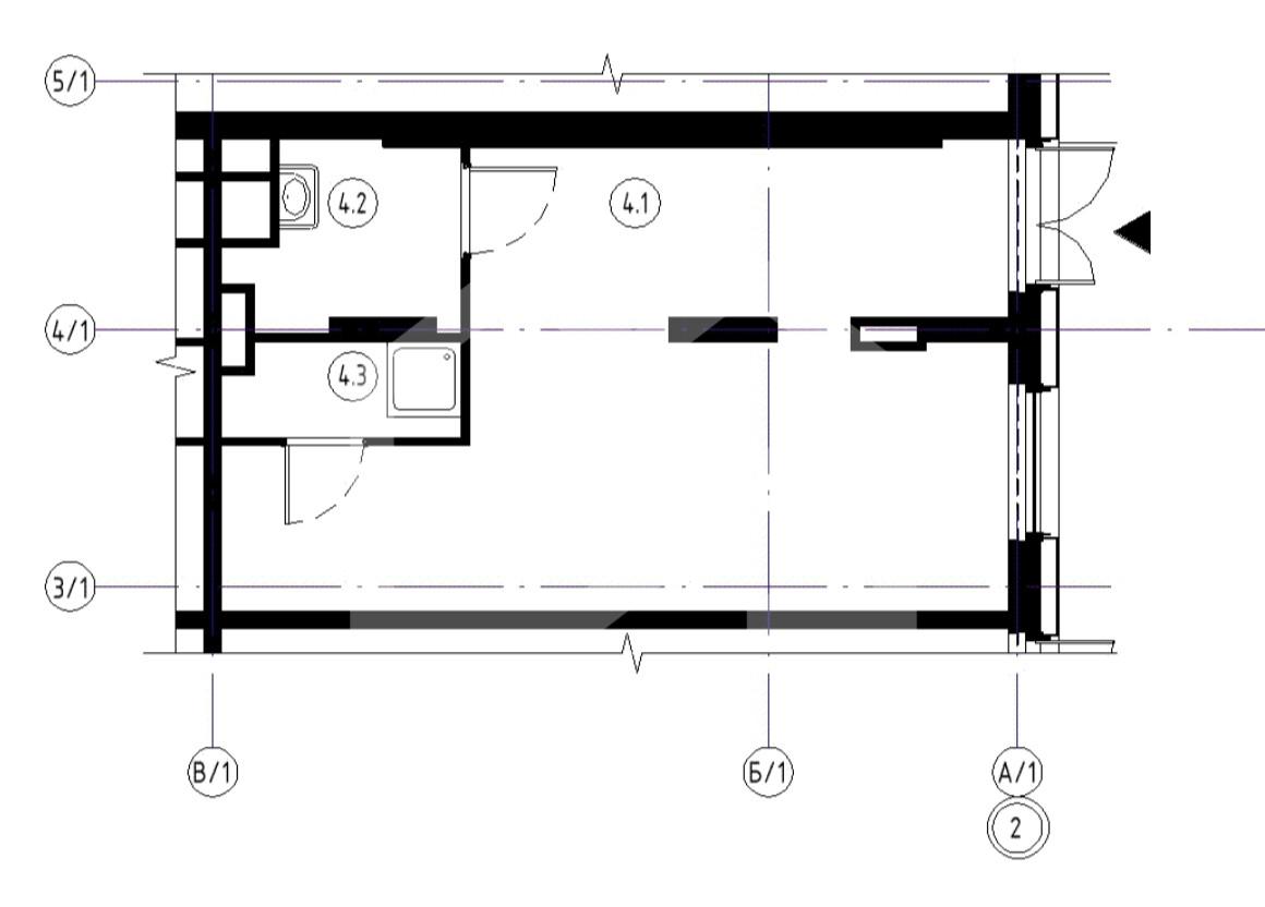
Продажа помещения свободного назначения у метро Автозаводская, 37,8 м2
Цена:
31 113 180 ₽
Цена м²:
823 100 ₽
г Москва, 2-й Павелецкий проезд, д 7
Продаётся торговое помещение в ЖК Sokolinn Park
• Современный жилой комплекс бизнес-класса в зелёном районе, рядом с парками Сокольники и Лосиный остров
• Удобная транспортная доступность: 10 минут пешком до метро Преображенская площадь, выезд на СВХ и ТТК
• Новый жилой квартал с активной заселённостью и высоким пешеходным трафиком
• 1 этаж жилого дома
• Витринное остекление по фасаду
• Отдельный вход с улицы
• Высокие потолки, свободная планировка
• Подходит под любой вид деятельности: ритейл, кофейня, салон, аптека, офис, услуги
• Современная архитектура и благоустроенная территория
• Активное окружение — жильцы комплекса и соседних домов
