ID: 1065204
Ссылка скопирована!

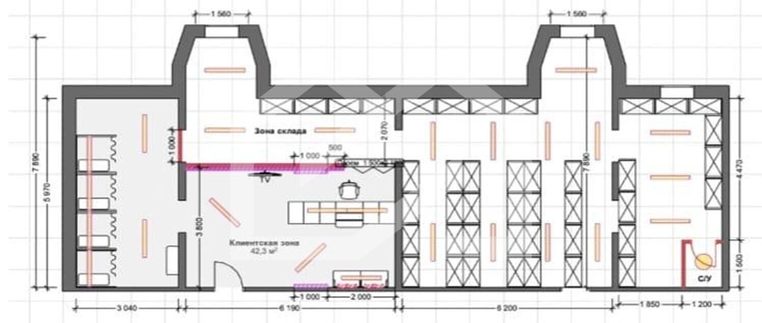
Продажа готового бизнеса в г.  Люберцы, 120,4 м2

Цена (УСН):17 750 000 ₽
Цена за м2:147 425
Площадь: 120,4 м2
Московская обл, г Люберцы, деревня Островцы, ул Подмосковная, д 27
Томилино
18 мин.
  • Доходность18,19 %
  • Окупаемость5,5 лет
  • МАП269 000
  • ГАП3 228 000

Описание

Характеристики объекта

Расположение

Московская обл, г Люберцы, деревня Островцы, ул Подмосковная, д 27

Похожие объекты

Не нашли, что искали?

Мы поможем в выборе!

+7

Персональные консультанты свяжутся с вами в течении 5 минут

Expert Photo