ID: 1061537
Ссылка скопирована!
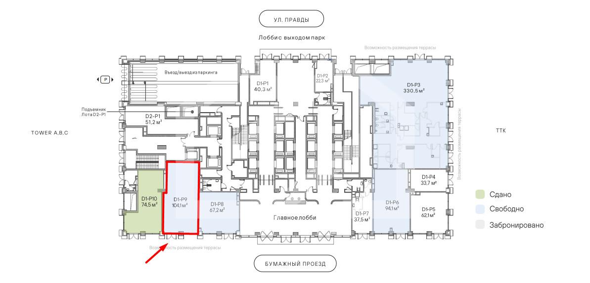
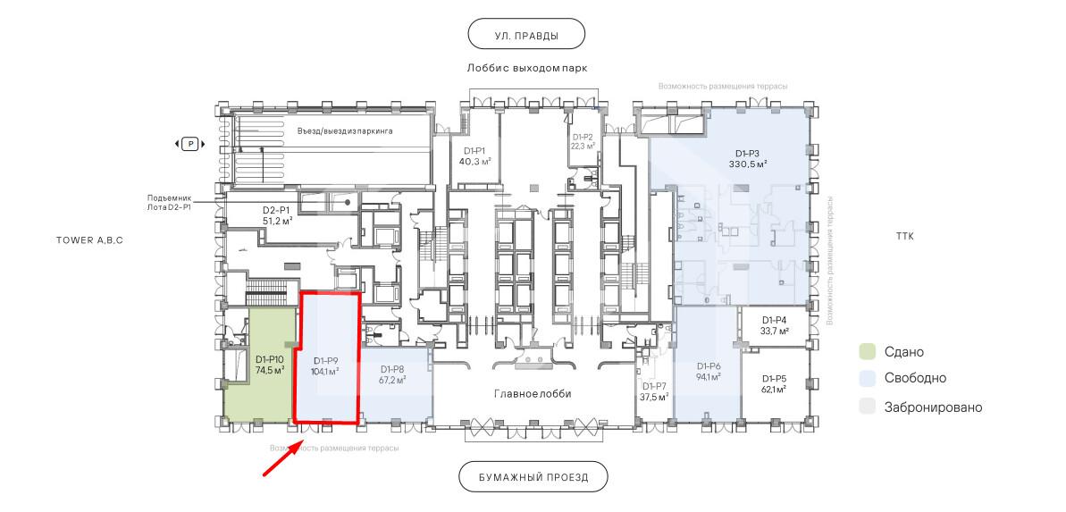
Аренда помещения свободного назначения в БЦ «Stone Towers», 104,1 м2
ID: 1061537
г Москва, Бумажный проезд, д 19 стр 5
Савёловская
7 мин.
Арендная плата (без НДС):900 000 ₽/ в мес
Ссылка скопирована!
Арендная ставка:8 645 ₽/м² в мес
Площадь: 104,1 м²
г Москва, Бумажный проезд, д 19 стр 5
Савёловская
7 мин.
Описание
Характеристики объекта
Характеристики БЦ
Описание
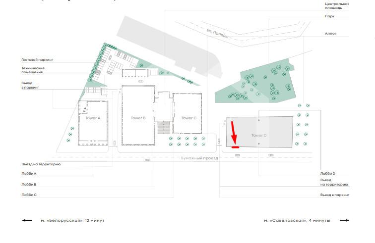
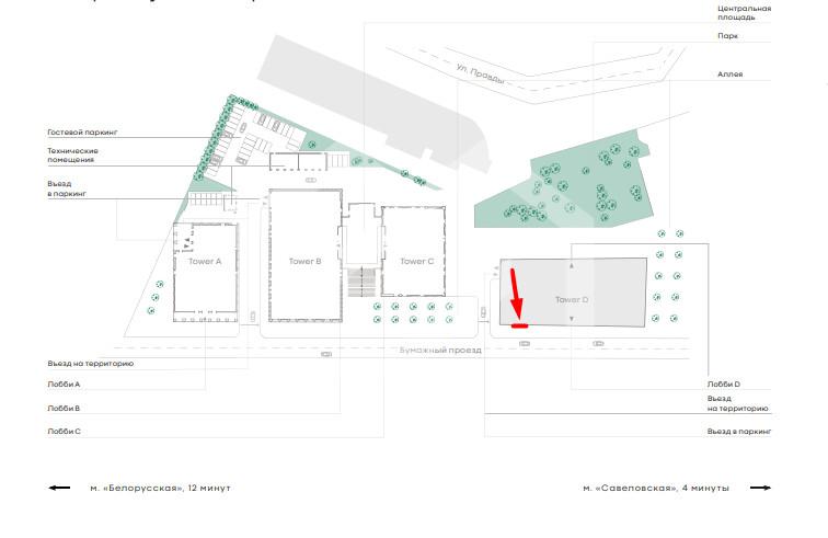
Помещение свободного назначения в БЦ премиум-класса "Stone Towers" на первой линии Бумажного проезда. 7 минут пешком от станции метро "Савёловская". 600 м до ТТК, 1.8 км до Ленинградского проспекта, 4 км до Дмитровского шоссе, 6 км до Волоколамского шоссе и Ленинградского шоссе. Плотный жилой массив. Сложившееся торговое окружение. Интенсивный автомобильный и пешеходный трафик. 1 этаж 23-этажного БЦ. Отдельный вход с фасада. Открытая планировка. Витринное остекление. Возможность размещения вывески. Собственная парковка на 237 машиномест. Рядом остановка общественного транспорта. Ввод: 4 квартал 2025 года. Передача ключей: весна 2026 года.
Расположение
г Москва, Бумажный проезд, д 19 стр 5
Савёловская
7 мин.
Похожие объекты










