Аренда помещения свободного назначения у метро Хлебниково, 84,2 м2
Аренда в месяц:
227 340 ₽
Цена м²/год:
32 400 ₽
141435, Московская обл, г Химки, кв-л Международный, ул Береговая, д 10
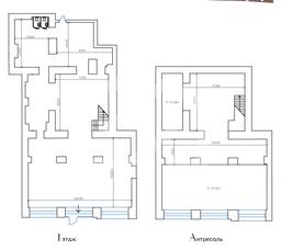
Помещение свободного назначения формата торговое помещение в историческом здании на первой фасадной линии главного торгового коридора и самой знаменитой ул. Тверская. 30 м от станции метро "Пушкинская". 1.5 км до Садового кольца, 4.8 км до Кутузовского проспекта, 5.5 км до Звенигородского шоссе, 6.7 км до Хорошёвского шоссе. Плотный жилой массив. Сложившееся торговое окружение. Интенсивный автомобильный и пешеходный трафик. 1 этаж (330.8 кв. м) + антресоль (129.9 кв. м) 3-этажного жилого дома. Отдельный вход с улицы. Открытая планировка. Центральные коммуникации. Возможно увеличение площади за счёт подвала (по запросу). Электрическая мощность: 130 кВт. Высота потолков: 1 этаж - от 4.7 до 6 м, антресоль - 2.2 м. Витринное остекление. Место для размещения вывески. Удобная зона разгрузки-погрузки во дворе. Допустим круглосуточный режим работы (24/7). Ближайшие городские парковки расположены в Козицком переулке и на Страстном бульваре. Рядом подземный пешеходный переход и остановка общественного транспорта.
