Аренда офиса у метро Профсоюзная, 2 000 м2
Аренда в месяц:
17 629 000 ₽
Цена м²/год:
105 768 ₽
г Москва, Нахимовский пр-кт, д 58
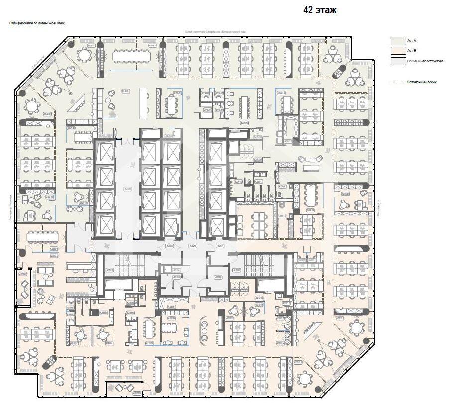
Бизнес-центр премиум-класса ICITY в центре делового района. 5 минут пешком от станций МЦК Шелепиха и МЦД-4 Москва-Сити. 500 м до ТТК. Бизнес-центр состоит из двух офисных башен с панорамным остеклением Time Tower и Space Tower (общей площадью 147 800 кв. м), которые объединены между собой восьмиэтажным подиумом. Развитая инфраструктура: фуд-холл, кафе и рестораны, мини-маркет, салоны красоты, цветочные магазины, аптеки, винотека, химчистка, ателье, службы сервиса и т.д. 42 этаж. 1 898,7 кв.м. Смешанная планировка. С отделкой. Панорамное остекление с открывающимися окнами. Биометрический доступ в здание, топовая инженерия. Приточно-вытяжная вентиляция, центральное кондиционирование. Видовые террасы. Интеллектуальные системы управления зданием. Энергоэффективные инженерные решения с сертификацией. 5 уровней паркинга. Рядом остановка общественного транспорта. Ландшафтный парк на территории атриума. На стилобатной части благоустроенный зеленый парк, с беговой дорожкой.
