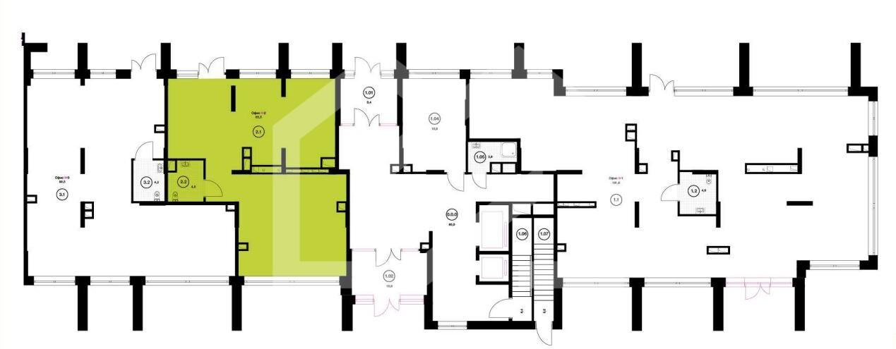
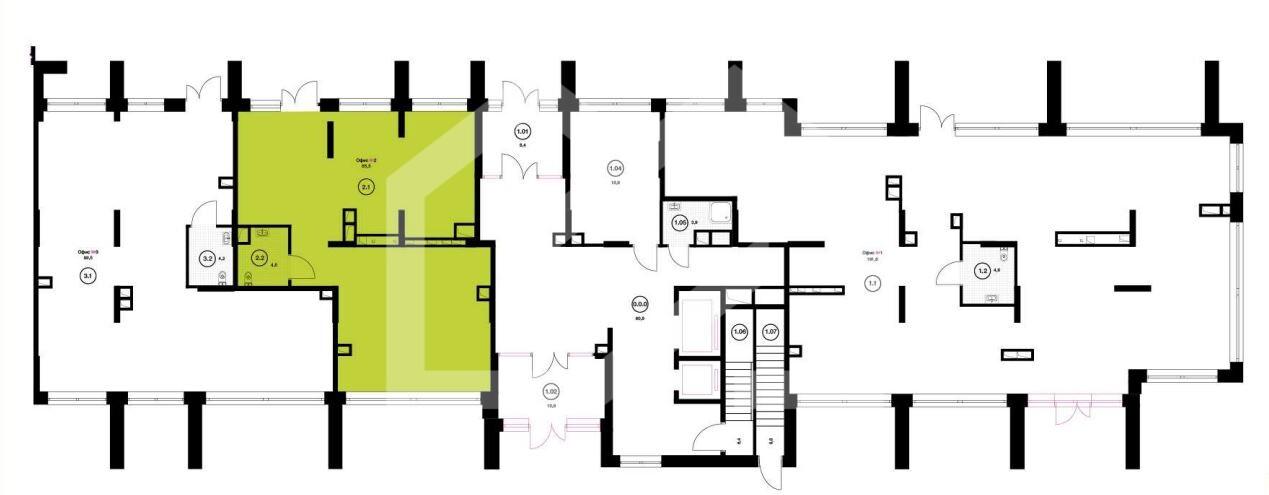
Продажа помещения свободного назначения на улице Ленинский проспект, 166,2 м2
Цена:
53 184 000 ₽
Цена м2:
320 000 ₽
г Москва, Ленинский пр-кт, д 67 к 1
Помещение свободного назначения формата Street Retail в ЖК "Пушкино Град" на первой линии ул. Нижняя. ЖК состоит из 3-х 17-этажных корпусов, рассчитанных на 1 192 квартиры. 20 минут пешком от ж/д станции "Заветы Ильича" и 5 минут на автомобиле от ж/д станции "Правда". 2.8 км до Ярославского шоссе, 3 км до Степаньковского шоссе, 5 км до Ельдигинского шоссе. Плотный жилой массив. Отсутствие конкурентной среды. Стабильный автомобильный и пешеходный трафик. 1 этаж 17-этажного жилого дома. Отдельный вход с улицы. Открытая планировка. Электрическая мощность: 17 кВт. Высота потолков: 5 м. Витринное остекление. Возможность размещения вывески. Наземная парковка напротив помещения. Выдача ключей: 3 квартал 2026 г.

