Продажа торговой площади в ЖК «Пригород Лесное», 131,22 м2
Цена:
37 700 000 ₽
Цена м2:
287 303 ₽
Московская обл, г Видное, пгт Мисайлово, мкр Пригород Лесное, ул имени Героя России Филипова, д 10
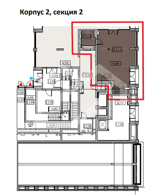
Помещение свободного назначения формата Street Retail в престижном ЖК "Insider". Корпус 2. Секция 2. Густонаселённый жилой массив. Интенсивный автомобильный и пешеходный трафик. Развитая инфраструктура: выезд на ТТК рядом с ЖК. Пешая доступность до станций метро Тульская (25 мин.), Автозаводская (20 мин.) и МЦК ЗИЛ (18 мин.) Сложившееся торговое и деловое окружение. 1 этаж 16-этажного здания. Отдельный вход с фасада. Открытая планировка. Витринное остекление. Возможность размещения вывески. Рядом находится остановка общественного транспорта.

