Продажа производственного помещения на улице МКАД 51-й, 10 810 м2
Цена:
3 200 000 000 ₽
Цена м²:
296 022 ₽
г Москва, МКАД 51-й км, д 4
Предлагается склад в промышленном комплексе общей площадью 11 746 кв. м.на востоке Москвы.
Виды разрешенного использования:
- тяжелая промышленность (6.2);
- автомобилестроительная промышленность (6.2.1);
- легкая промышленность (6.3);
- нефтехимическая промышленность (6.5);
- строительная промышленность (6.6);
- целлюлозно-бумажная промышленность (6.11).
- автомобильные мойки (4.9.1.3.)
- ремонт автомобилей (4.9.14)
- автомобилестроительная промышленность (6.2.1)
- фармацевтическая промышленность (6.3.1)
- энергетика: размещение объектов электросетевого хозяйства 3.1
- связь 3.1.1, 3.2.3 (6.8)
Преимущества:
- крупнейший индустриальный кластер города, который отличается развитой инфраструктурой и удобной транспортной развязкой.
- удачная локация территориально связывает комплекс с другими районам и через ключевые транспортные артерии: Носовихинское шоссе, СВХ, МСД, МКАД.
- в шаговой доступности от парка находятся остановки общественного транспорта, а в нескольких минутах езды — станция метро Новокосино.
- 8 шахт под грузовые лифты.
- ворота в уровень пола.
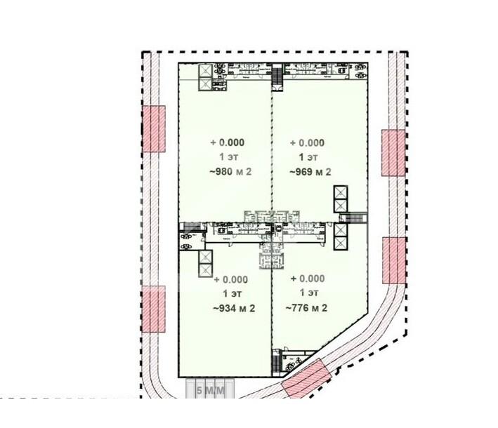
- наземная парковка на 13 м/м.
- все коммуникации центральные.
- есть возможность деления от 4 000 кв. м.
- ЗУ общей площадью 60 соток. В аренде.
Технические характеристики:
- общая площадь здания: 11 746 кв. м.
- три этажа по 3 656 кв. м.
- высота потолка: 1 - этаж: 8,5 м. 2 - 3 этажи по 4 м.
- нагрузка на пол 1 - этаж: 4 т/м, 2 - 3 этажи по 1,5 т/м.
- запас по электричеству: 1,5 Мвт.
РНС будет получен в декабре 2025 г.
Срок на реализацию проекта 1,5 г.
Срок сдачи 3 - 4 квартал 2027 г.
Есть рассрочка на время строительства.
