Продажа земельного участка в г. Истра, 150 сот
Цена:
375 000 000 ₽
Цена сот:
2 500 000 ₽
Московская обл, г Истра, деревня Покровское, ул Центральная, зд 39
Кадастровый номер: 77:04:0003016:1451
Земельный участок общей площадью 144 сот. с проектом гостиницы, помещениями общественного назначения, офисным блоком и подземным гаражом-стоянкой в Марьино.
Параметры:
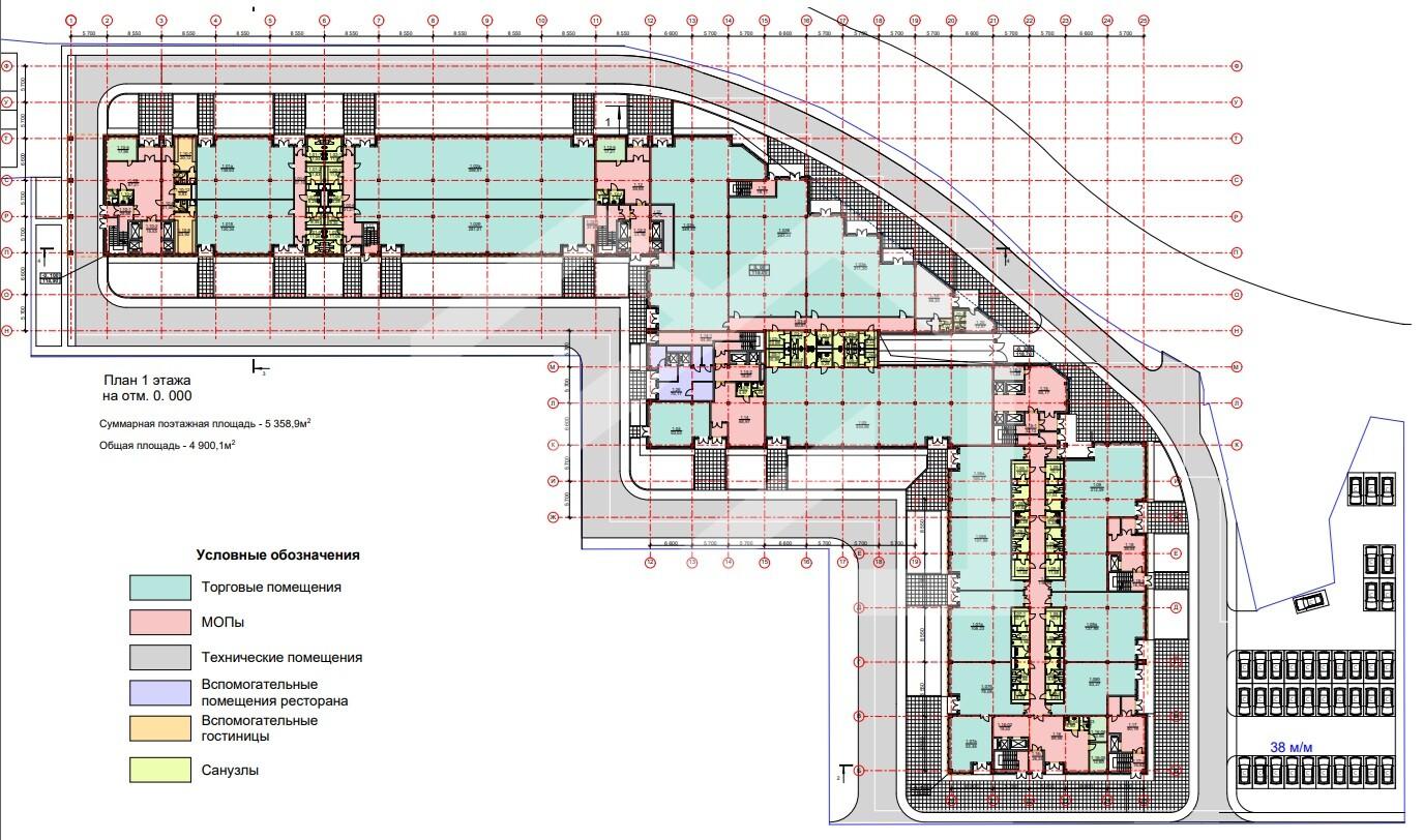
Площадь застройки: 5 634,1 кв.м.
Общая площадь проекта: 107 807,7 кв.м.
Проектируемое здание сложной Z-образной формы.
Габариты здания в плане: - в осях 1- 25 – 168,7 м; - в осях А-Ф – 111,15 м.
Высота здания – 69.9 м.
Здание 23-ти этажное с одноуровневым подвалом/паркингом предназначенного для размещения автотранспорта, инженерно-технических, подсобных, вспомогательных помещений и физкультурно-оздоровительного комплекса.
Торговые помещения, ресторан, ночной клуб и шкала искусств (2-4-й этажи).
Офисно-деловой блок (пристроенный) – 2-й – 9-й этажи.
Гостиничный блок помещений – 2-23-й этажи. Подземная часть здания выходит за габариты 1-го этажа.
Из них:
Подвал - 10 956,2 кв.м. парковка на 381 м/мест с техническими помещениями.
1 этаж - 4 544,2 кв.м. помещения торговли со служебно-бытовыми и складскими помещениями, высота потолка 4,8 м.
2 этаж - 5 115,5 кв.м. помещения ресторана с технологическими помещениями кухни, помещения офисно-делового блока и гостиница, высота потолка 3,6 м.
3 этаж – 5 142,7 кв.м. ночной клуб, помещения офисно-делового блока и гостиница с МОП и вспомогательными помещениями, высота потолка 3,6 м.
4 этаж – 5 132,7 кв.м. школа искусств с классами, помещения офисно-делового блока и гостиница, высота потолка 3,6 м.
5-й - 23-й - 67 025,5 кв.м. этажи гостиничного блока, высота потолка 2,85 м. Категория гостиницы – 4 звезды. На этажах со 2-го по 21-й (включительно) расположены номера гостиничного типа, одно, 2-х, 3-х и 4-х местные. На этажах с 22-го по 23-й (включительно) расположены 2-х уровневые гостиничные номера.
В соответствии с ГПЗУ основными видами разрешенного использования земельного участка являются:
- Размещение зданий, предназначенных для размещения домов престарелых, домов ребенка, детских домов (3.2.1).
- Деловое управление. Размещение объектов капитального строительства с целью: размещения объектов управленческой деятельности, не связанной с государственным или муниципальным управлением и оказанием услуг (4.1).
- Банковская и страховая деятельность. (4.5).
- Гостиничное обслуживание. Размещение гостиниц (4.7).
- Служебные гаражи. Размещение постоянных или временных гаражей с кодами 3.0, 4.0, а также для стоянки и хранения транспортных средств общего пользования, в том числе в депо (4.9).

