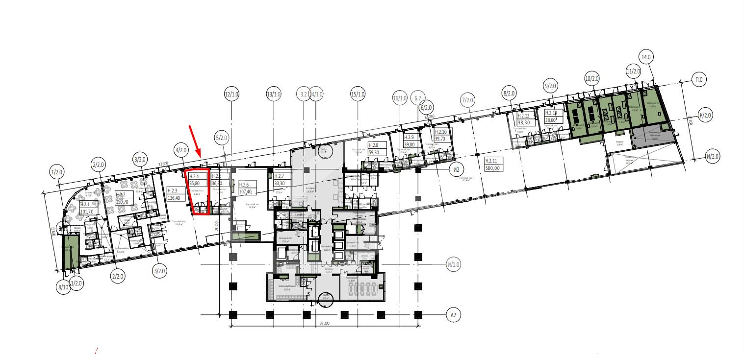
Продажа торговой площади в ЖК «Russian Design District» (Рашен Дизайн Дистрикт), 96,8 м2
Цена:
35 421 540 ₽
Цена м²:
365 925 ₽
г Москва, поселение Десеновское, ул 1-я Ватутинская, д 12 к 2
Помещение свободного назначения формата торговое помещение в МФК бизнес-класса "Мираполис" на первой линии проспекта Мира. ЖК состоит из 4 корпусов переменной этажности (от 33 до 35 этажей), рассчитанных на 3 882 квартиры. 5 минут пешком от станции МЦК "Ростокино". Ежедневный пассажиропоток через станцию МЦК "Ростокино" составляет 64 тыс. чел. (по данным Метростат). 3.4 км до Ярославского шоссе, 3.8 км до Медведковского шоссе, 4.4 км до СВХ. Густонаселённый жилой массив. Сложившееся торговое и деловое окружение. Сверхинтенсивный автомобильный трафик. 1 этаж 35-этажного жилого дома. Отдельный вход. Открытая планировка. Высота потолков: 5 м. Электрическая мощность: 7 кВт. Витринное остекление. Возможность размещения вывески. Подземная парковка. Рядом остановки общественного транспорта. Ввод эксплуатацию: 2026 г.
