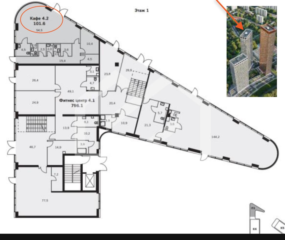
Продаётся помещение свободного назначения формата Street Retail в ЖК «Amber City», лот 4.2.
- Первая линия, отдельный вход с улицы.
- ЖК расположен в престижном Хорошёвском районе Москвы.
- Всего 5 минут пешком до метро и МЦД «Беговая».
- Удобный выезд на ТТК и Звенигородское шоссе.
- В непосредственной близости — Москва-Сити, Белорусский вокзал и деловые кварталы.
- Комплекс строится по концепции «город в городе»: парк 6 га, образовательные учреждения, торговые и сервисные объекты.
- Плотный жилой массив и высокая деловая активность вокруг обеспечивают стабильный пешеходный и автомобильный трафик.
- Панорамное остекление, возможность размещения вывески.
- Подходит для кафе, кофейни, гастро-проекта или семейного ресторана.