Аренда офиса на улице Нахимовский проспект, 2 084 м2
Аренда в месяц:
6 356 200 ₽
Цена м2/год:
36 600 ₽
г Москва, Нахимовский пр-кт, д 58
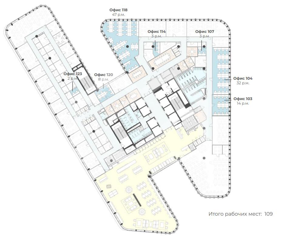
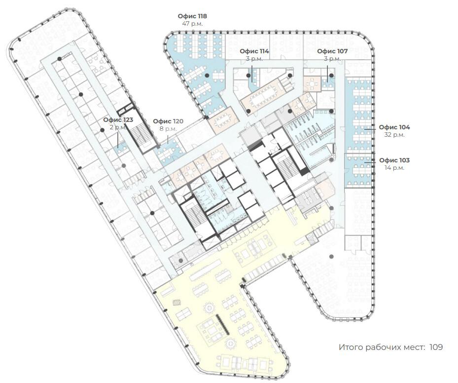
Коворкинг в строении А бизнес-центра "Белая Площадь". 47 рабочих мест. Развитая инфраструктура, отличная транспортная доступность. Доступ арендаторов 24/7. Современная инженерия. Профессиональная управляющая компания. Высота потолка – 3,6 м. 3 лифтовых лобби. 18 основных высокоскоростных лифтов марки KONE. 2 лифта паркинга. 6 грузопассажирский лифт. Система видеонаблюдения за доступом на всех входах в зданиях и на парковку. Спринклерная система пожаротушения, лестничные пролёты оборудованы устройствами подпора воздуха с системами дымоудаления. Центральная 4-х трубная система кондиционирования и вентиляции. Два независимых источника электроснабжения. Компьютеризированная система управления функционированием зданием.
