Аренда офиса в БЦ Башня Федерация, 343 м2
Аренда в месяц:
3 185 000 ₽
Цена м2/год:
111 420 ₽
г Москва, Пресненская наб, д 12
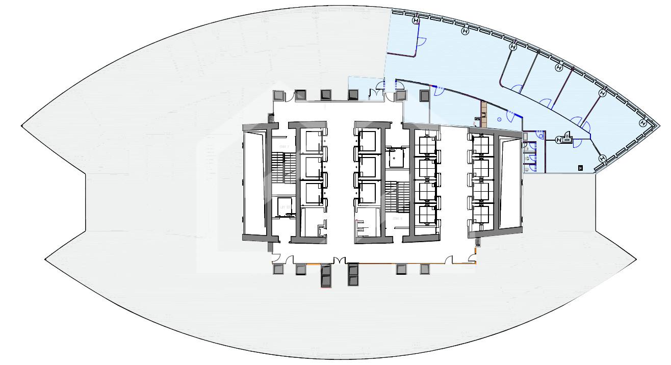
Офисное помещение в бизнес-центре класса А "Башня на Набережной" в Пресненском районе (Блок С). Ближайшие станции метро — "Международная" и "Выставочная" находятся под ТРЦ Афимолл (4 мин. пешком). Помещение площадью 410 кв. м на 46 этаже. Смешанная планировка. Приточно-вытяжная вентиляция, центральное кондиционирование. За отдельную плату можно арендовать место на подземной парковке (4 уровня на 600 автомобилей). Наземная парковка для гостей и работников БЦ рассчитана на 250 машиномест. В здании действует торговая галерея с ресторанами, фудкортами и барами. Работают отделения банков, салоны красоты, ателье, аптека, магазины одежды. Нижние этажи здания занимают торговая галерея и предприятия сферы услуг.

