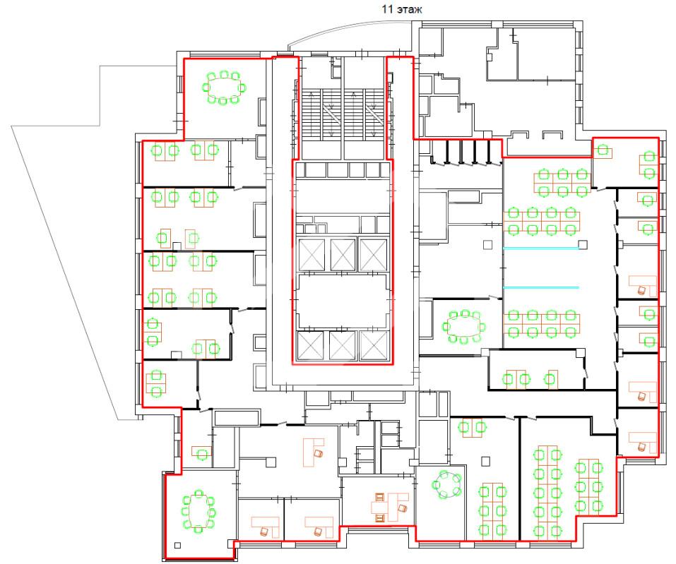
Аренда офиса на улице Береговой проезд, 200 м2
Аренда в месяц:
1 684 800 ₽
Цена м2/год:
101 088 ₽
г Москва, Береговой проезд, д 5А к 1
Офисное помещение с балконом в бизнес-центре «Central Park Tower». 6 минут пешком от станции метро Шаболовская. Выезд на Садовое кольцо в 1,5 км, расстояние до ТТК - 2,5 км. Рядом с БЦ несколько кафе, супермаркет, аптека, отделение банка, магазины. На 1 этаже служба ресепшн, кафе и столовая, отделение банка, магазин, салон красоты, платежный терминал и банкомат. 11 этаж 22-этажного здания. Смешанная планировка: open space, 3 кабинета, 2 переговорные, кухня, санузлы и зона ресепшена. Офисная отделка. Центральное четырехтрубное кондиционирование. Приточно-вытяжная вентиляция, сигнализации (противопожарная и охранная), контроль доступа. 7 скоростных лифтов Otis. Четырехуровневый подземный паркинг. Электрическая мощность: 70 Вт/кв. м. Высота потолков: 3,5 м.