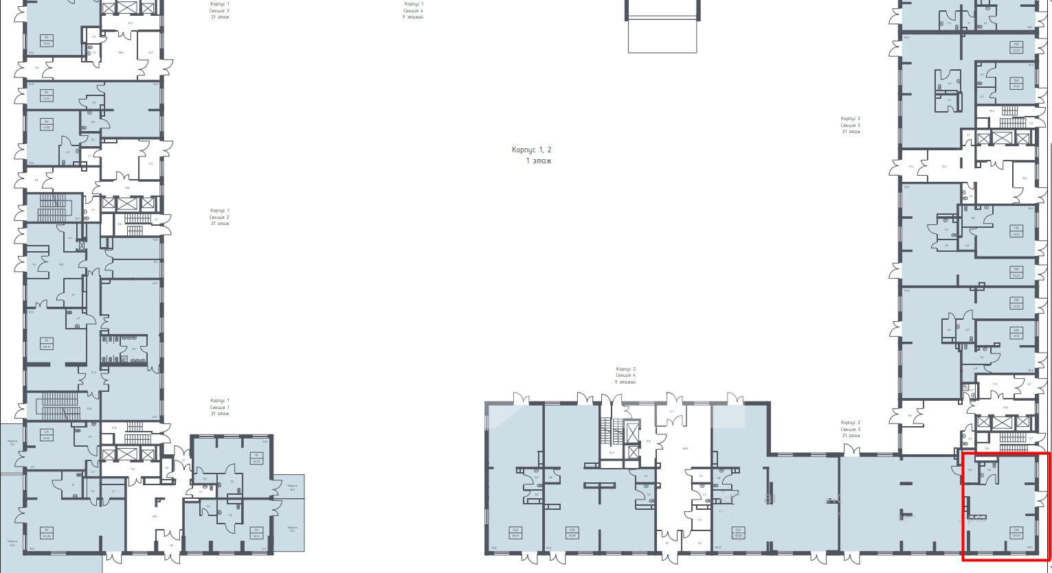
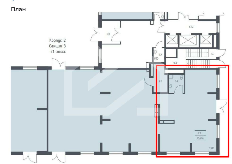
Аренда торговой площади на улице Варшавское шоссе, 238,6 м2
Аренда в месяц:
600 000 ₽
Цена м2/год:
30 168 ₽
г Москва, Варшавское шоссе, д 2
В аренду сдаётся помещение свободного назначения формата Street Retail в ЖК бизнес класса "Вереск". Корпус 2. ЖК состоит из 2х корпусов этажностью от 9 до 21 этажа и рассчитан на 3000 жителей. 10 минут пешком до станции метро "Октябрьское поле". Развитая транспортная инфраструктура: выезд на СЗХ в 2 км. Плотный жилой массив, сложившееся торговое окружение. Интенсивный автомобильный и пешеходный трафик. 1-й этаж. Угловой блок. Отдельный вход с фасада. Смешанная планировка. Витринное остекление. Место для вывески. Напротив помещения располагается парковка и автомобильный въезд в ЖК. Рядом остановка общественного транспорта. Высота потолков: 4,5 м.

