Аренда склада, 650 м2
Аренда в месяц:
866 000 ₽
Цена м2/год:
15 984 ₽
г Москва, поселение Московский, деревня Саларьево, влд 5 стр 1
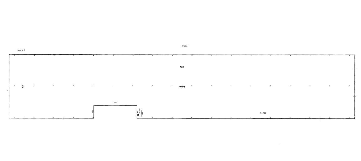
Отапливаемое складское помещение площадью 1700 м² в Лобне. Центр крупного логистического кластера. 13.5 км от МКАД. Удобный выезд на магистрали: Дмитровское - 2 км, Рогачёвское - 500 м, Шереметьевское, Ленинградское шоссе, Сев. обход Лобни. 2 км от МЦД "Лобня". 1 этаж. Открытая планировка. Бетонный пол. Большие ворота. Пожарная сигнализация. Парковка. Охраняемая территория. Работа 24/7 (круглосуточно и без выходных). Бесплатный въезд на территорию.
Основные параметры:
-Площадь: 1700 м².
-Габариты: 100 м (длина) x 18 м (ширина).
-Шаг колонн: 6х9 м.
-Высота потолков: 7.0 м (6 м рабочая высота).
-Нагрузка: до 5 т/м2.
-Ворота: 1 шт. "в ноль" (уровень с землей, удобно для погрузчиков) + 1 шт. пандус.
-Электроснабжение: 20 кВт.