Аренда склада в г. Химки, 8 250 м2
Аренда в месяц:
9 625 000 ₽
Цена м2/год:
13 992 ₽
Московская обл, г Химки, деревня Перепечино, стр 1Б/1
Новое складское помещение класса "В" на первой линии Фряновского шоссе. Удобный подъезд для большегрузного автотранспорта, 29 км от МКАД. Развитая инфраструктура. 1 этаж. Ворота - 2 шт. на уровне "0". Открытая планировка + офисный блок. Полы - антипыль. Полностью оборудован всем необходимым для эксплуатации. Водоснабжение - скважина, канализация - септик. Земельный участок в собственности. Категория - земли промышленности, ВРИ - склады. В шаговой доступности остановка общественного транспорта.
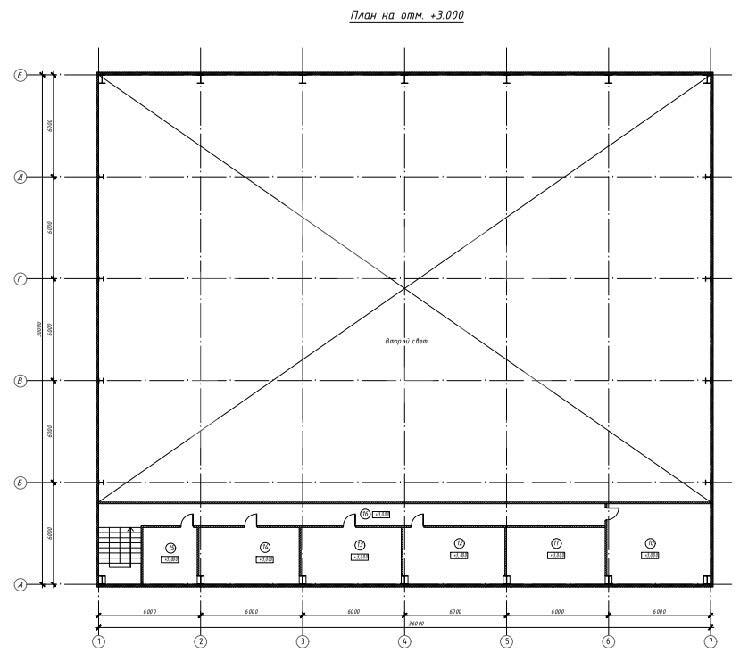
Технические характеристики:
Общая площадь - 1000 кв.м., в т.ч. офисный блок на мезонине - 100 кв.м.
Высота потолка - 8 метров до ферм, 10 в коньке.
Сетка колонн - 9*3 метра.
Электрическая мощность - 50 кВт., с возможностью увеличения.
Земельный участок: 22 сотки.
Возможна установка кран-балки.
Прямой представитель собственника, без комиссии для арендатора.

