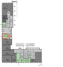
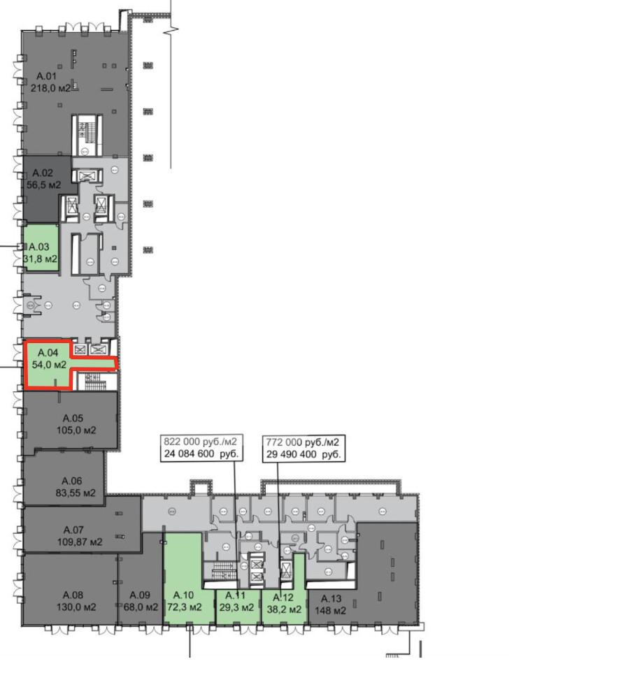
Продажа торговой площади в ЖК Sydney City, 118,7 м2
Цена:
118 700 000 ₽
Цена м2:
1 000 000 ₽
г Москва, ул Шеногина, д 2
Помещение свободного назначения формата Street Retail в ЖК "МИRA". Корпус: 2. Секция: 1. ЖК состоит из 3 корпусов переменной этажности (от 17 до 24 этажей), рассчитанных на 762 квартиры. 10 минут пешком от станции метро "Улица Сергея Эйзенштейна". 190 м до проспекта Мира, 3.5 км до Ярославского шоссе, 4.5 км до ТТК. Плотный жилой массив. Сложившееся торговое окружение. Интенсивный автомобильный и пешеходный трафик. 1 этаж 23-этажного жилого дома. Отдельный вход с улицы. Открытая планировка. Электрическая мощность: 10 кВт. Высота потолков: 4 м. Витринное остекление. Возможность размещения вывески. Наземная парковка. Рядом остановка общественного транспорта.