Продажа торговой площади в ЖК Sydney City, 118,7 м2
Цена:
118 700 000 ₽
Цена м2:
1 000 000 ₽
г Москва, ул Шеногина, д 2
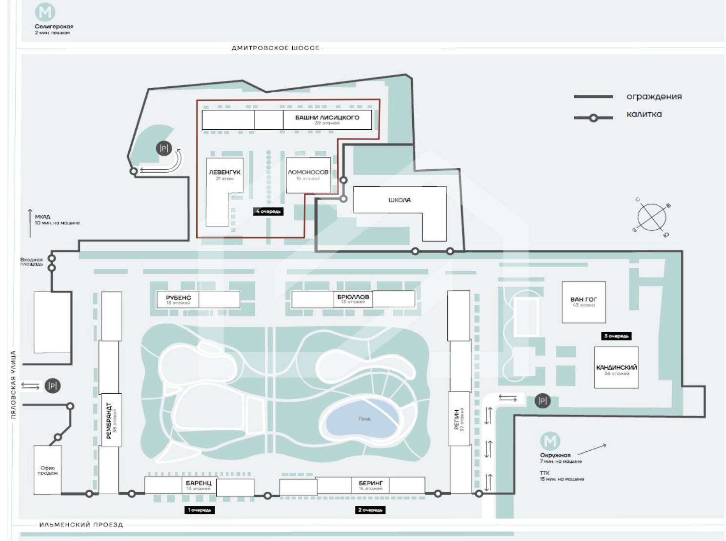
Помещение свободного назначения формата Street Retail в жилом комплексе «Селигер Сити». Корпус: F Левенгук. ЖК состоит из 11 корпусов переменной этажности (от 12 до 45 этажей), рассчитанных на 4 657 квартир. 7 минут пешком от станции метро Селигерская. Густонаселённый жилой массив. Три парка в радиусе 2 км, 300 метров до ближайшего крупного ТЦ. Интенсивный автомобильный и пешеходный трафик. 1 этаж 21-этажного жилого дома. Отдельный вход с улицы. Открытая планировка. Витринное остекление. Наземный паркинг. Большая собственная территория. Рядом остановка общественного транспорта. Срок сдачи: 3 квартал 2026 г. Электрическая мощность: 17 кВт. Высота потолков: 4 м. Идеально под любой вид деятельности.