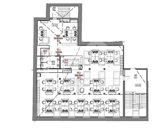
Аренда офиса на улице Загородное шоссе, 508 м2
Аренда в месяц:
1 058 333 ₽
Цена м2/год:
24 996 ₽
г Москва, Загородное шоссе, д 1
Офис в историческом районе Хамовники на Несвижском переулке. 7 минут пешком от станции метро Парк культуры. Рядом Комсомольский проспект, открывающий прямой доступ к Садовому кольцу (менее 600 м) и ТТК. Сложившееся деловое окружение. 4 этаж (мансарда) административного здания. Смешанная планировка. Офисная отделка. 48 рабочих мест. С мебелью. Проведены необходимые для комфортной работы коммуникации. Круглосуточная охрана. Высота потолков: 3 м.

