Аренда офиса в БЦ Башня Федерация, 1 150 м2
Аренда в месяц:
9 372 500 ₽
Цена м2/год:
97 800 ₽
г Москва, Пресненская наб, д 12
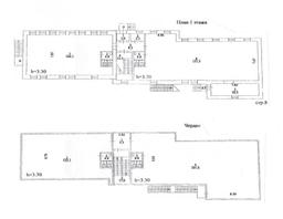
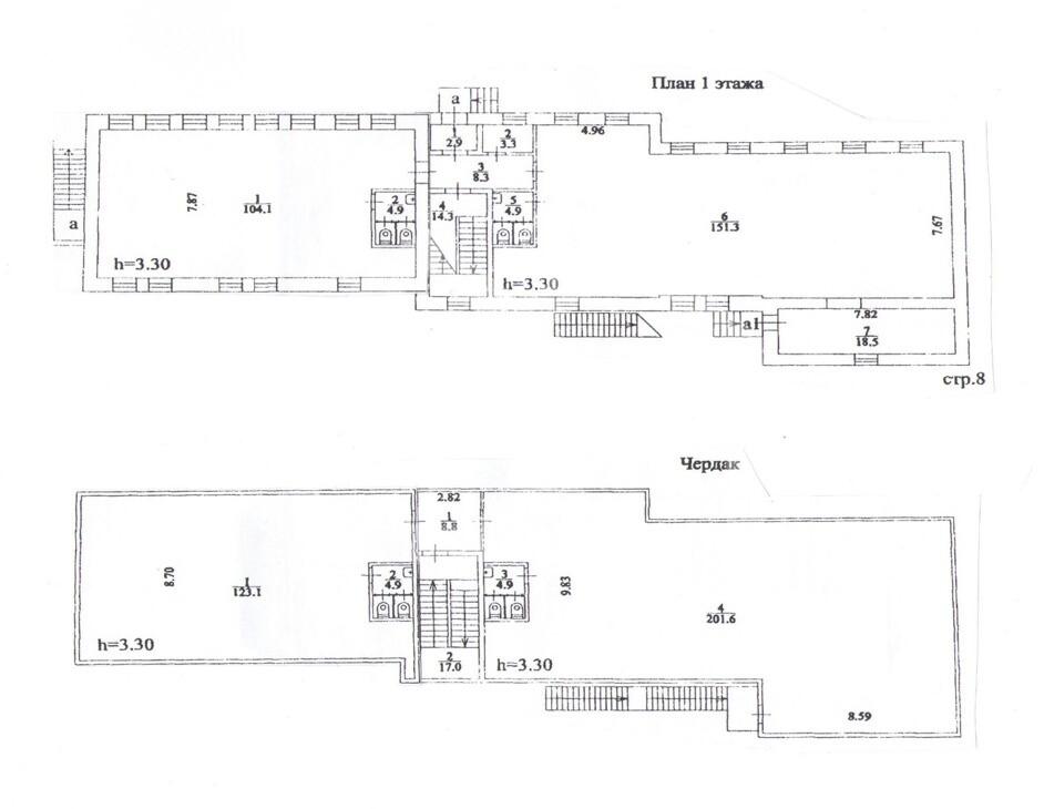
К аренде предлагается нежилое здание свободного назначения, площадью 673 кв.м., в непосредственной близости от Садового и Бульварного кольца, в пешей доступности от станций метро "Чкаловская" и "Курская". Квартал в центре города с развитой деловой активностью: ТЦ «Атриум», Сбербанк, ОТП-банк, Добрынинский, ВкусВилл, продуктовые магазины, аптека Ригла, Горздрав, Самсон-Фарма, нотариус, рестораны и пекарни, кафе, мед. центры. 1 этаж и мансарда. Потолки высотой 3,3 метра. Смешанная планировка, можно сделать любую конфигурацию, в том числе OPEN SPACE. Помещение оборудовано всеми необходимыми инженерно-техническими системами. Телефония, Интернет.

